一鍵同款一鍵同款一鍵同款設計
分享
下載
《淺 嚐》
桃園市
一鍵同款一鍵同款一鍵同款設計

大量玻璃隔間與開放空間,採光極大化

北歐風

風格

商業空間

屋況

100坪

坪數

6房1廳

格局

成員1大人

費用分佈

總費用 442萬單坪4.4萬
我家裝修報價我家裝修報價
明細費用金額
設計費40萬
施工費51.7萬
材料費330.7萬
其他19.6萬

設計方案

設計方案
loading
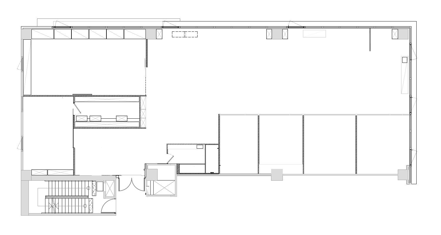
Before
loading
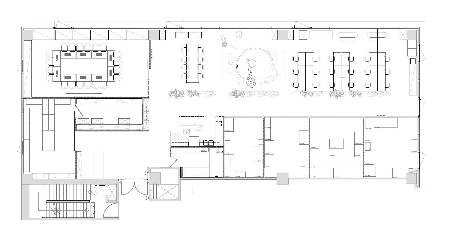
After

屋主訴求屋主訴求

1.希望擺脫傳統辦公室壓迫的隔間,極大化採光。 2.希望客戶一進門就能感受到公司的專業、冷靜與高質感的品牌形象。 3.有區塊能營造出像咖啡廳般的放鬆氛圍,適合腦力激盪或短暫休息。 4.大量的文件收納需求,確保辦公環境不雜亂。 5.需要獨立的實驗室及小型會議室。

設計思路設計思路

1.因客戶的極大化採光需求。採用了大量玻璃隔間與開放式辦公區,讓視覺寬廣通透。 2.將茶水間提升為「社交中島」,運用異材質結合營造放鬆的居家氛圍,打破辦公室的嚴肅感。 3.減少隔間而以多功能矮櫃作為工作區域的分隔,也因此提供了大量文件收納機能。 4.盡量維持天花板高度優勢,透過光影消弭大樑的壓迫感,並以白色軌道燈營造精緻工業風。 5.實驗室及小型會議室大量採用玻璃材質。設計確保可穿透採光,維持空間
空間效果
測一測我適合哪種風格?
loading
loading
loading
loading
玄關: 1.地面採用大面積淺灰,視覺上與牆面的灰色塗料、白色天花板形成延續感。 2.Logo字樣採用特殊光源處理,讓品牌形象在灰色調牆面中脫穎而出。 3.牆面將灰色面漆、淺木紋飾板與玻璃材質進行拼接,展現出精緻的細節。 4.天花板採用大量嵌燈設計,均勻的光線產生柔和的漸層光影。 5.大量的收納櫃體與牆面整合,使玄關區域維持極度整潔的視覺感。

服務範圍

服務說明
丈量提案1萬 三套設計方案 (平面配置圖+設計意象)
基礎工程前置工程 CCTV及門禁工程 輕隔間工程 門窗工程 泥作工程 磁磚/石材工程 水電工程 空調工程 木作工程 鋁框玻璃門及玻璃工程 金屬/玻璃工程 油漆工程 系統櫃工程 家具工程 燈具工程 五金/材料工程 窗簾工程/壁紙工程 清潔工程
監工服務5% 視工種每1-2日專人監工 拍照在line群組匯報進度
裝修保固保固1年

*服務範圍屬定製化服務,以設計師和業主洽談方案為準

施工過程

施工過程
鐵件工程
輕鋼架
水電工程
弱電
油漆工程
油漆
木作工程
木工
系統工程
系統櫃
相關作品推薦
同公司
同風格·北歐風
同預算 · 442萬