一鍵同款一鍵同款一鍵同款設計
分享
下載
拂煦
桃園市
#透天宅
#老屋重生
#老屋翻新
#透天裝修
一鍵同款一鍵同款一鍵同款設計

中性與大地色結合,打造沉穩系居家

現代混搭

風格

中古屋

屋況

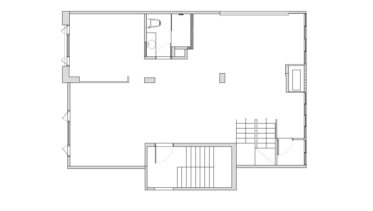
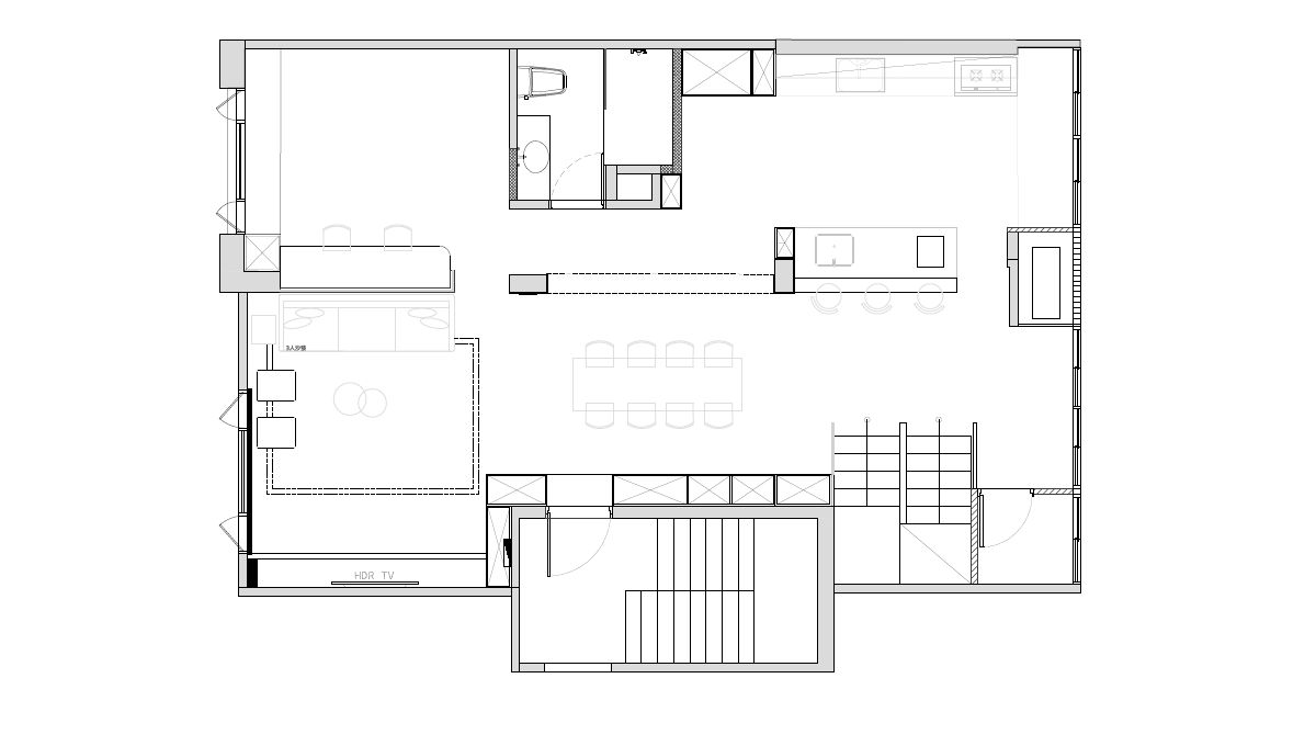
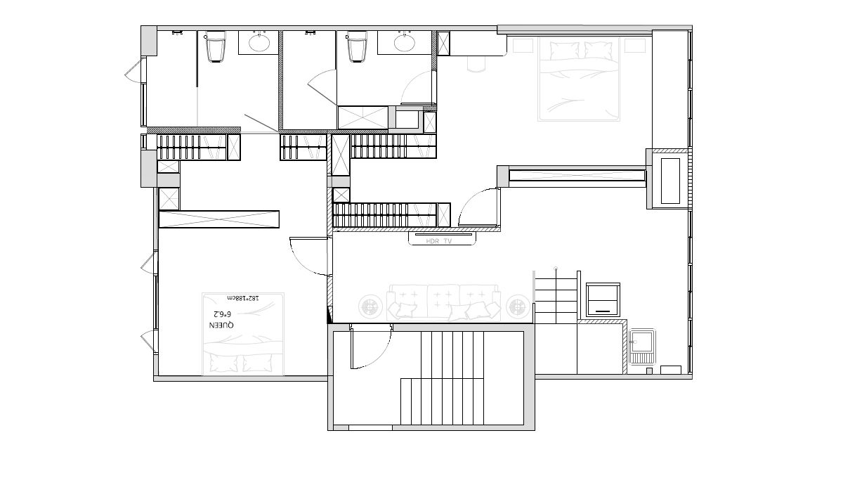
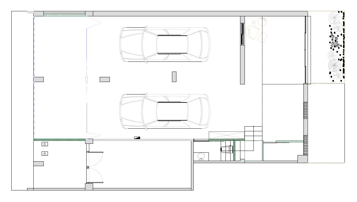
80坪

坪數

3房4廳4衛

格局

成員2大人2兒童

費用分佈

總費用 837萬單坪10.5萬
我家裝修報價我家裝修報價
明細費用金額
設計費30萬
施工費183.2萬
材料費585.4萬
其他38.4萬

設計方案

設計方案
loading
Before
loading
After
loading
Before
loading
After
loading
Before
loading
After

屋主訴求屋主訴求

1.屋主喜愛工業與現代揉合的混搭個性風格。 2.屋內空間的門拱、橫樑太壓迫,希望能用造型處理。 3.具備吧台機能的大型中島,並與餐廳採開放式結合。 4.屋內深處較為陰暗,特別要求改善採光。 5.需要可以能專心辦公的場域,並有部份收納展示機能。

設計思路設計思路

1.透過垂直層次的天井採光與異材質的視覺穿透,將自然光導引至複層空間的每一個角落,讓光線成為空間的主角。 2.龐大的收納機能沿著樑柱下方配置,利用長向的櫃體設計,將機能隱藏於立面,釋放地坪的最大遼闊感。 3.將樓梯轉化為空間中的大型立體雕塑,透過極簡線條與踏板空隙,讓動線本身成為公領域中最吸睛的藝術裝飾。 4.利用圓潤的弧角包覆天花樑柱與門框,將原本壓迫的建築結構轉化為流動的藝術線條。
空間效果
測一測我適合哪種風格?
loading
loading
loading
loading
1.弧型電視背牆採用淺灰色特殊塗料,賦予牆面如同雕塑般的流動美感。 2.空調主機隱藏於天花結構中,維持天花板的平整與純粹。 3.背牆與結構樑柱大量使用水泥質感特殊漆,演繹出內斂的現代工業風格。 4.沉穩的大地色系沙發在灰色基調中注入一抹穩定且溫暖的生活氣息。

服務範圍

服務說明
丈量提案1萬 三套設計方案 (平面配置圖+設計意象)
基礎工程外牆工程 拆除工程 隔間工程 門窗工程 泥作工程 磁磚/石材工程 水電工程 空調工程 木作工程 金屬/玻璃工程 油漆工程 系統櫃工程 木地板工程 燈具工程 五金/材料工程 窗簾工程 清潔工程 設備工程
監工服務5% 視工種每1-2日專人監工 拍照在line群組匯報進度
裝修保固保固1年

*服務範圍屬定製化服務,以設計師和業主洽談方案為準

施工過程

施工過程
基礎拆除
鷹架搭建+剃至見磚+窗框拆除+管路挖除+廢棄物清運+牆面放樣
水電工程
配線放樣
泥作工程
隔間定位
相關作品推薦
同公司
同風格·混搭風
同預算 · 837萬