一鍵同款一鍵同款套用這個風格
分享
下載
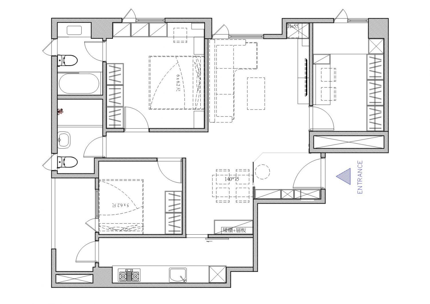
桃園昇捷M+

76萬

預算

北歐風

風格

新成屋

屋況

18坪

坪數

3房2廳2衛

格局

一鍵同款一鍵同款套用這個風格
空間效果
測一測我適合哪種風格?
loading
loading
loading
相關作品推薦
同公司
同風格·北歐風
同預算 · 76萬