算同款報價算同款報價
分享
下載
古典設計-竹北自地自建01

500萬

預算

奢華風

風格

自地自建

屋況

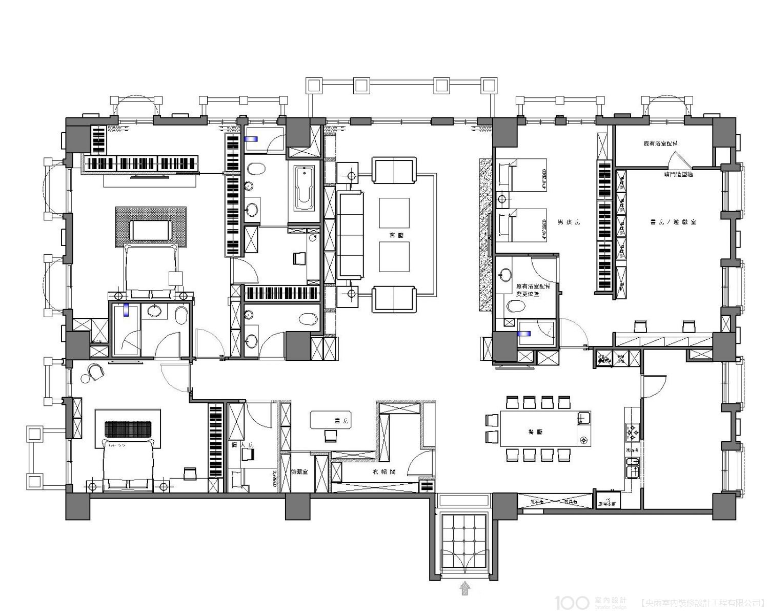
90坪

坪數

3房2廳2衛

格局

設計理念:
央雨設計不拘泥於風格語彙,多元材質的運用與多層次的視感表現,讓大宅大器中蘊含可觀細節;此案的設計風格精彩大公演:微古典X現代簡約X都會時尚X公主風,在每個空間段落中,皆有各自的驚豔表情。更值得一提是,央雨設計開創花園概念天花板設計,優雅轉換場域,成功又華麗地串連整體。

央雨室內設計

29套作品
承接局部預算
一年內保固
到府丈量
深度傾聽需求
收納規劃
初步報價
簽訂合約保障
整屋費用:接案200萬起
設計費用:面議
新成屋:5萬/坪起
接案區域:六都可接案
請設計師聯絡我
線上諮詢
空間效果
測一測我適合哪種風格?
loading
loading
loading
loading
相關作品推薦
同公司
同風格·奢華風
同預算 · 500萬