算同款報價
格局實景圖
玄關(2)
客廳(8)
吧檯(2)
書房(1)
臥室(1)
其他(1)
歐式設計-新竹雲鼎
500萬
預算
古典風
風格
毛胚屋
屋況
50坪
坪數
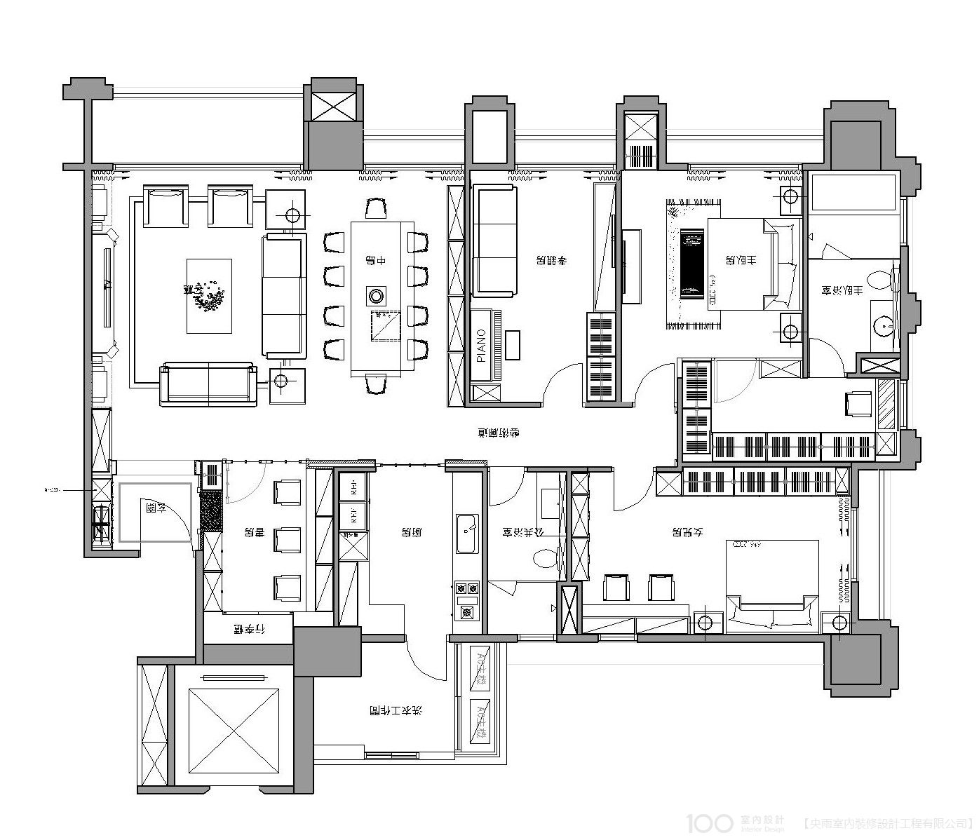
3房3廳2衛
格局
設計理念:
充盈希臘古典風格的海洋風鏡面透析豪宅,央雨設計運用反射、透視材質營造開闊大器感,以鏡面、玻璃為場域區隔介質,如書房、廚房均以格狀玻璃門設計,展示櫃襯底、收納櫃門等,則由鏡面取代,增加延伸與通透效果。 央雨設計以藍白色調的希臘愛琴海風情作為視覺主題,有別於一般沉穩色調的孝親房詮釋,改用開闊明朗的悠閒調性,成功結合琴房與長輩房。
央雨室內設計
29套作品
承接局部預算
一年內保固
到府丈量
深度傾聽需求
收納規劃
初步報價
簽訂合約保障
整屋費用:
接案200萬起
設計費用:
面議
新成屋:
5萬/坪起
接案區域:
六都可接案
請設計師聯絡我
線上諮詢
空間效果
測一測我適合哪種風格?
相關作品推薦
同公司
同風格·古典風
同預算 · 500萬