小坪數輕奢美宅,散發知性優雅的魅力
現代奢華
風格
中古屋
屋況
16坪
坪數
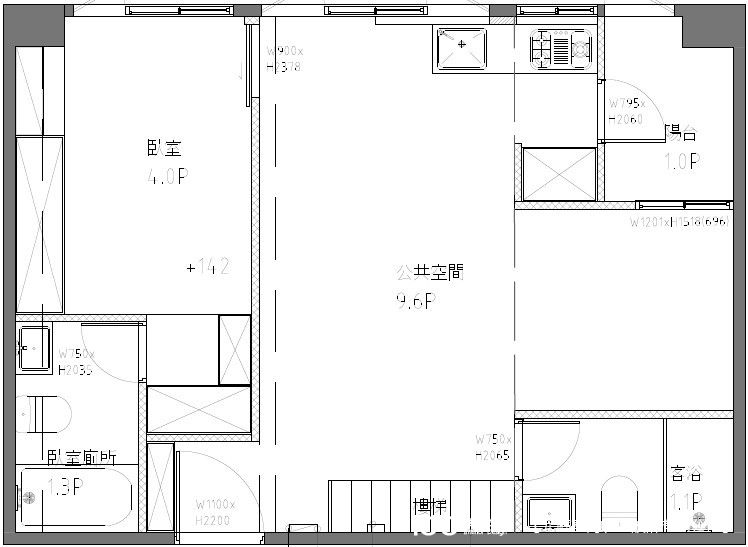
2房2廳2衛1陽台
格局
費用分佈
| 明細 | 費用金額 |
|---|---|
| 設計費 | 13萬 |
| 施工費 | 300萬 |
設計方案


屋主訴求
設計思路




服務範圍
| 服務 | 說明 |
|---|---|
| 丈量服務 | 3000元(簽約抵設計費) |
| 基礎工程 | 大理石工程: 電視牆 泥作工程: 衛浴*2. 落塵區 水電工程: 全戶線路配置規劃 木作工程: 全室天花板. 壁面造型. 門片 油漆工程: 天花壁面水泥漆. 造型牆面噴砂 木地板工程: EGGER木地板 系統櫃工程: 全屋櫃體、鐵件玻璃 清潔工程: 全屋細清、垃圾清運 |
| 監工服務 | 工程費5%收取 項目設計師專人監工、定期在line群組匯報工程進展 |
| 裝修保固 | 保固1年 |
*服務範圍屬定製化服務,以設計師和業主洽談方案為準

作品開箱

挑高小宅拆除夾層,維持2房機能還有更衣室+海量收納!16坪優雅微奢美居
2023-12-21