· 柔和灰白色、簡約佈局,打造明亮光感北歐宅
中古屋
屋況
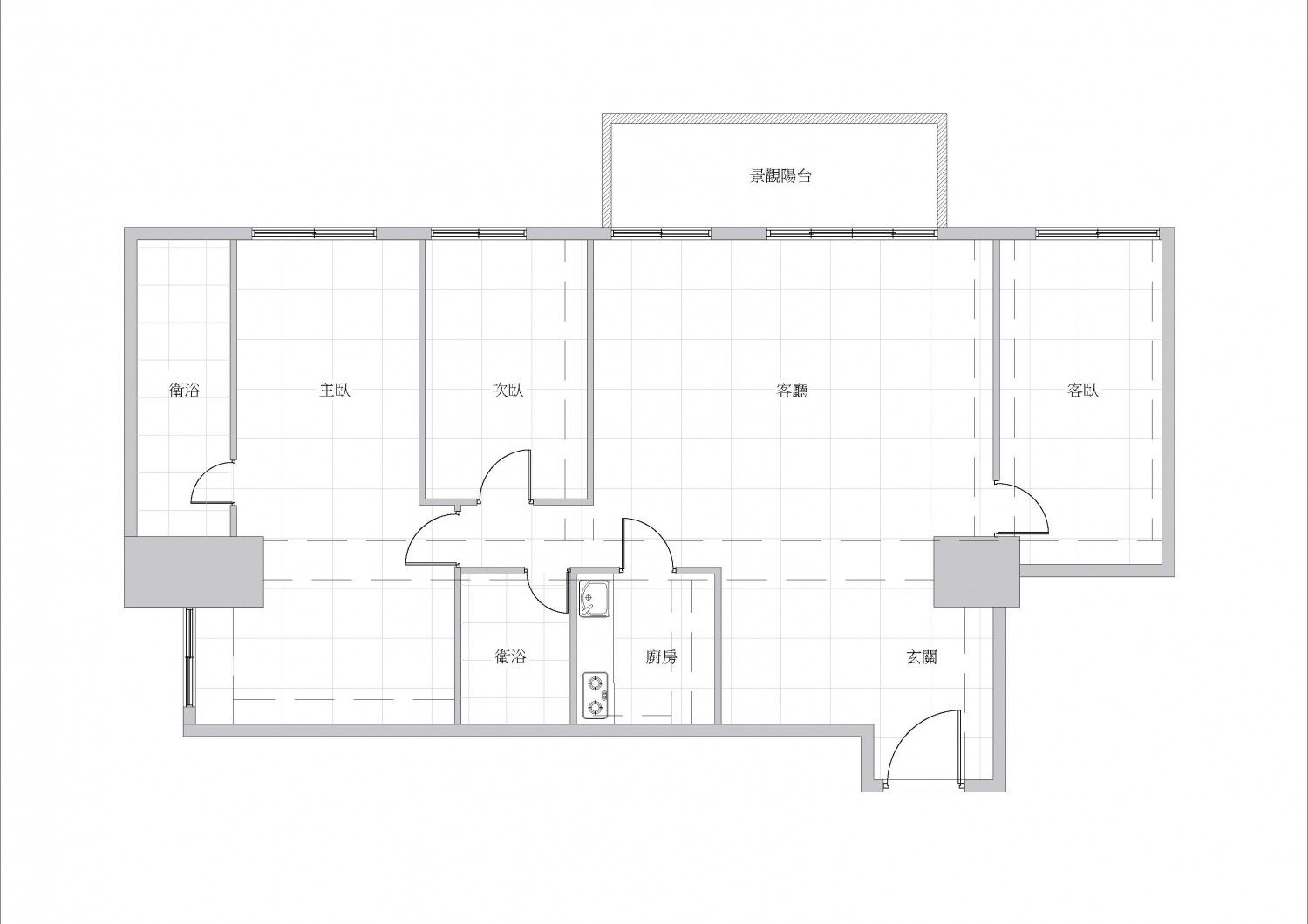
37坪
坪數
4房2廳2衛2陽台
格局

雲城室內裝修設計有限公司
費用分佈
| 明細 | 費用金額 |
|---|---|
| 設計費 | 10萬 |
| 施工費 | 210萬(連工帶料) |
設計方案


屋主訴求
設計思路




服務範圍
| 服務 | 說明 |
|---|---|
| 丈量服務 | 免費 |
| 提案服務 | 免費 |
| 基礎工程 | 全屋保護 拆除工程 冷氣工程 木作工程 油漆工程 系統工程 玻璃工程 |
| 監工服務 | 按總工程費5%收取 項目主管專人監工、每天在line群組匯報工程進展 |
| 裝修保固 | 保固1年 |
*服務範圍屬定製化服務,以設計師和業主洽談方案為準
施工過程
建材配備
| 品類 | 品牌 | 空間 |
|---|---|---|
| 系統 | 宏錩 | 全室 |
| 油漆 | 虹牌油漆,樂土塗料 | 客廳 |
| 插座開關 | 月光系列 | 臥室 |
