套用這個風格
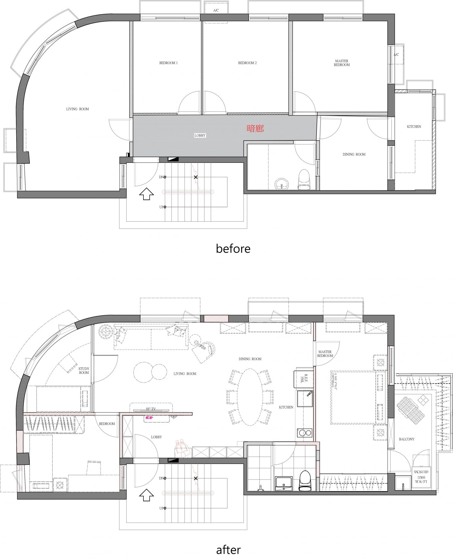
格局實景圖
玄關(2)
客廳(4)
餐廳(3)
臥室(4)
衛浴(1)
其他(1)
清立設計
追蹤IG
追蹤FB
A New Interpretation Of Elegance
201萬
預算
其他
風格
中古屋
屋況
25坪
坪數
3房2廳1衛
格局
套用這個風格
空間效果
測一測我適合哪種風格?
相關作品推薦
同公司
同風格·其他
同預算 · 201萬