一鍵同款一鍵同款套用這個風格
分享
下載
耕心
新北市
一鍵同款一鍵同款套用這個風格

結合現代黑白灰與復古線板元素的質感美式宅

美式現代

風格

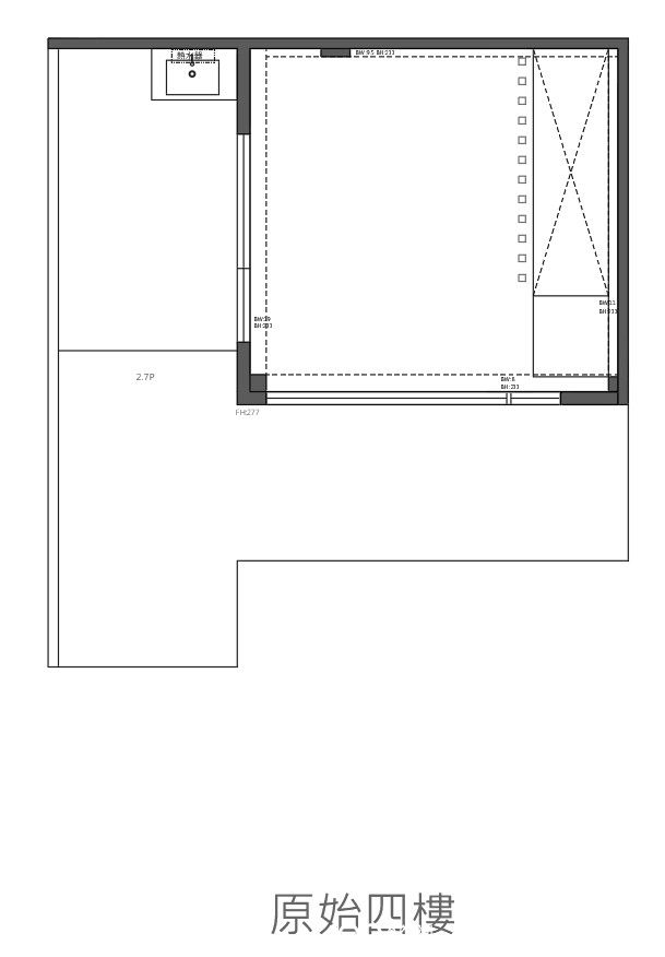
老屋翻新

屋況

66坪

坪數

4房3廳3衛

格局

社區法國小鎮成員2大人2兒童5寵物(貓)

費用分佈

總費用 480萬單坪8萬
我家裝修報價我家裝修報價
明細費用金額
設計費24萬
施工費456萬

設計方案

設計方案
loading
Before
loading
After
loading
Before
loading
After
loading
Before
loading
After
loading
Before
loading
After

屋主訴求屋主訴求

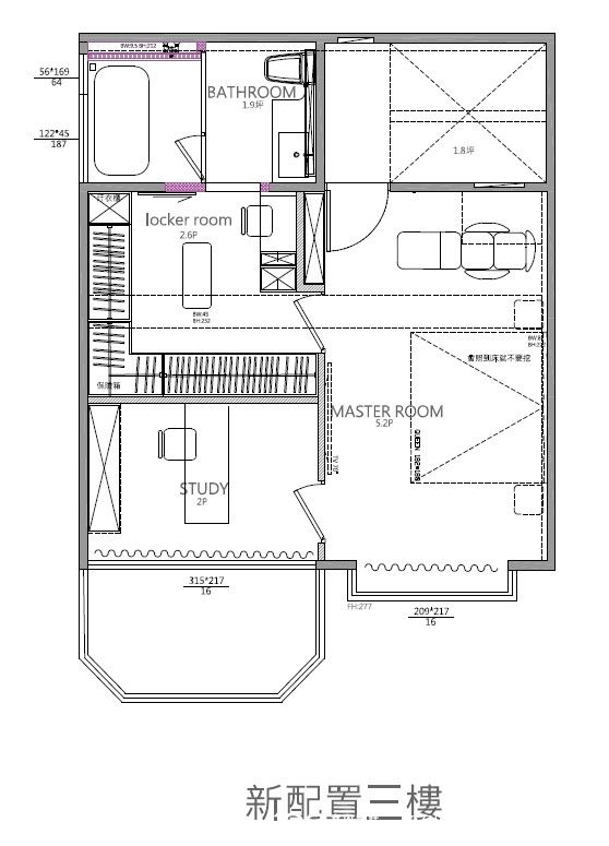
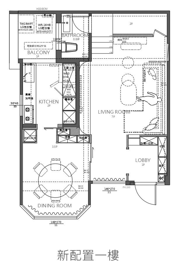
●屋主很好客,希望朋友來家裡聚時,餐廳跟客廳可以有連貫 ●鞋子多,規劃落塵區,鞋櫃也獨立做吊隱式除濕機 ●希望有更衣室、廚房間、大廚房 ●現代美式風格 ●家裡有養貓,房間門都要有留門洞

設計思路設計思路

●美式線板.踢角板.油漆跳色 ●灰色調空間呈現平衡穩定感 ●黑色鋁件及格子玻璃 ●進口花磚/進口木地板
空間效果
測一測我適合哪種風格?
loading
loading
1. 鋪設黑灰白花磚界定落塵區,透過異材質地坪明確劃分室內外場域。 2. 結合黑色鐵件與方格壓花玻璃屏風,維持採光通透並兼顧視覺隱私。 3. 配置落地灰鏡門片隱藏收納櫃體,利用鏡面反射放大狹長廊道空間感。 4. 運用白色線板櫃體搭配復古金屬壁燈,勾勒優雅細緻的美式氛圍。

服務範圍

服務說明
丈量服務6000元
提案服務免費 三套設計方案、3D效果圖
基礎工程部分拆除:浴室 廚房 (除蟲工程) 全屋保護:全屋防潮佈、塑膠瓦楞板 水電工程:廚房、衛浴線路 木作工程:系統櫃5組 泥作工程 油漆工程 鋁件 貼膜 木地板 防水工程
監工服務按總工程費5%收取 項目主管專人監工、每天在line群組匯報工程進展
裝修保固保固1年 施作範圍

*服務範圍屬定製化服務,以設計師和業主洽談方案為準

施工過程

施工過程
保護工程
保護工程
基礎拆除
拆除工程
泥作工程
泥作工程
水電工程
水電工程
木作工程
木作工程
油漆工程
油漆工程
冷氣工程
冷氣工程
地坪工程
木地板工程
玻璃工程
鋁門玻璃工程

建材配備

品類品牌空間
油漆得利DULUX客廳、臥室
拉門北二高客廳、廚房
木地板PERGO臥室
馬桶TOTO衛浴
相關作品推薦
同公司
同風格·美式風
同預算 · 480萬