設計師陳一鳳從業11年國立成功大學
中島凝聚生活動線,圍塑現代精緻輕奢寓所
現代風
風格
新成屋
屋況
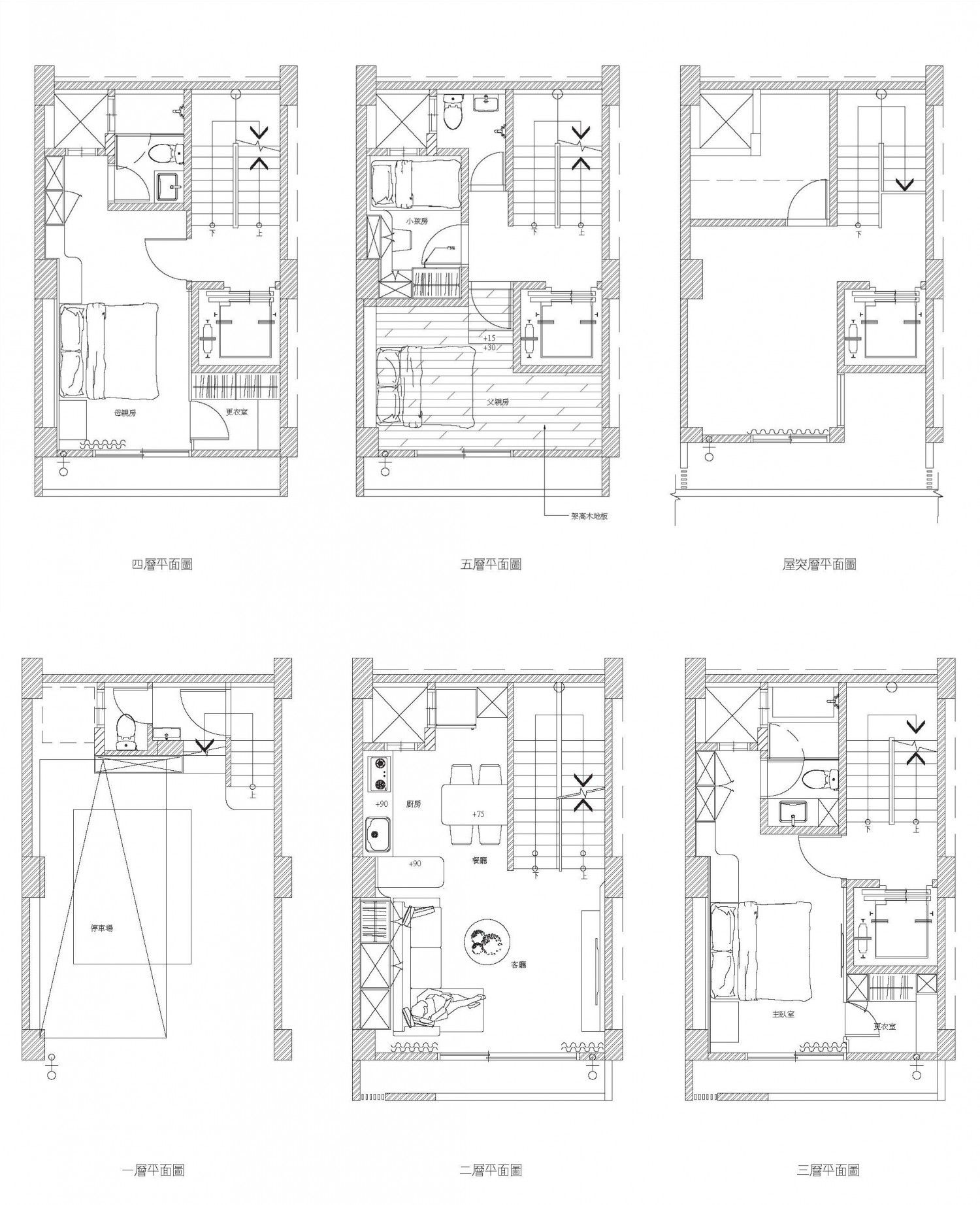
40坪
坪數
4房2廳4衛3陽台
格局
費用分佈
| 明細 | 費用金額 |
|---|---|
| 設計費 | 24萬 |
| 施工費 | 300萬(連工帶料) |
設計方案


屋主訴求
設計思路




服務範圍
| 服務 | 說明 |
|---|---|
| 丈量服務 | 5000元(簽約後可以於設計費折抵) |
| 基礎工程 | 軟件工程:窗簾、壁紙、床頭繃布 全屋保護:全屋2分夾板+防潮布+塑膠瓦愣板 水電工程:中島、開關、弱電、插座、燈具線路 木作工程:衣櫃、電視櫃、電視牆、鞋櫃、收納櫃、書桌、床頭櫃、餐 邊櫃、更衣室、天花板、床架、架高地板 油漆工程:藝術漆、烤漆、油漆 石材工程:電視牆大理石、中島人造石 |
| 監工服務 | 12萬(總工程費4%為監工費) 項目主管專人監工、每周在line群組匯報工程進展 |
| 裝修保固 | 保固1年 本工程施作項目 |
*服務範圍屬定製化服務,以設計師和業主洽談方案為準
施工過程
