25坪現代簡約的安心照護宅
現代風
風格
老屋翻新
屋況
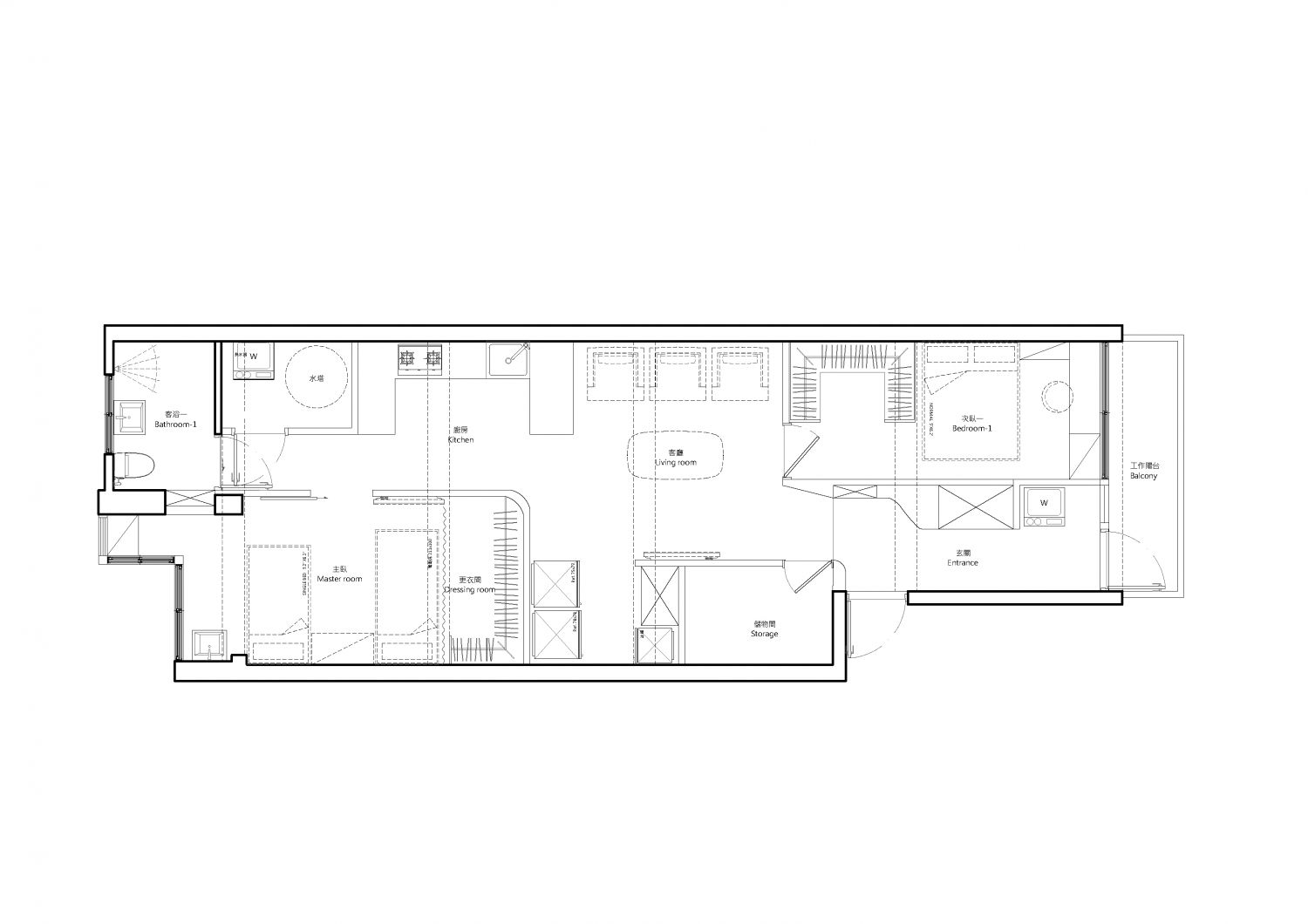
25坪
坪數
2房2廳1衛1陽台
格局
費用分佈
| 明細 | 費用金額 |
|---|---|
| 設計費 | 13萬 |
| 施工費 | 暫未披露,詳情可洽詢公司 |
設計方案


屋主訴求
設計思路




服務範圍
| 服務 | 說明 |
|---|---|
| 基礎工程 | 拆除工程: 全室木作及舊有磁磚面拆除 泥作工程: 全室地板及浴室翻新 水電工程: 全室電線及水路重新配置 大門/鋁窗工程: 全屋鋁窗、門以及大門更新 木作工程: 全室天花板、隔間及櫃組 油漆工程: 整室批土刷漆、客廳沙發背牆跳色處理 廚具工程: 廚具櫃更新 冷氣工程: 舊有延用及拆裝保養 清潔工程: 全室清潔 |
| 監工服務 | 按總工程費5~8%收取 |
| 裝修保固 | 保固1年 |
*服務範圍屬定製化服務,以設計師和業主洽談方案為準
施工過程
