設計師宋志鍾
用輕奢感點亮國際大獎,成就家的未來面貌
現代風
風格
新成屋
屋況
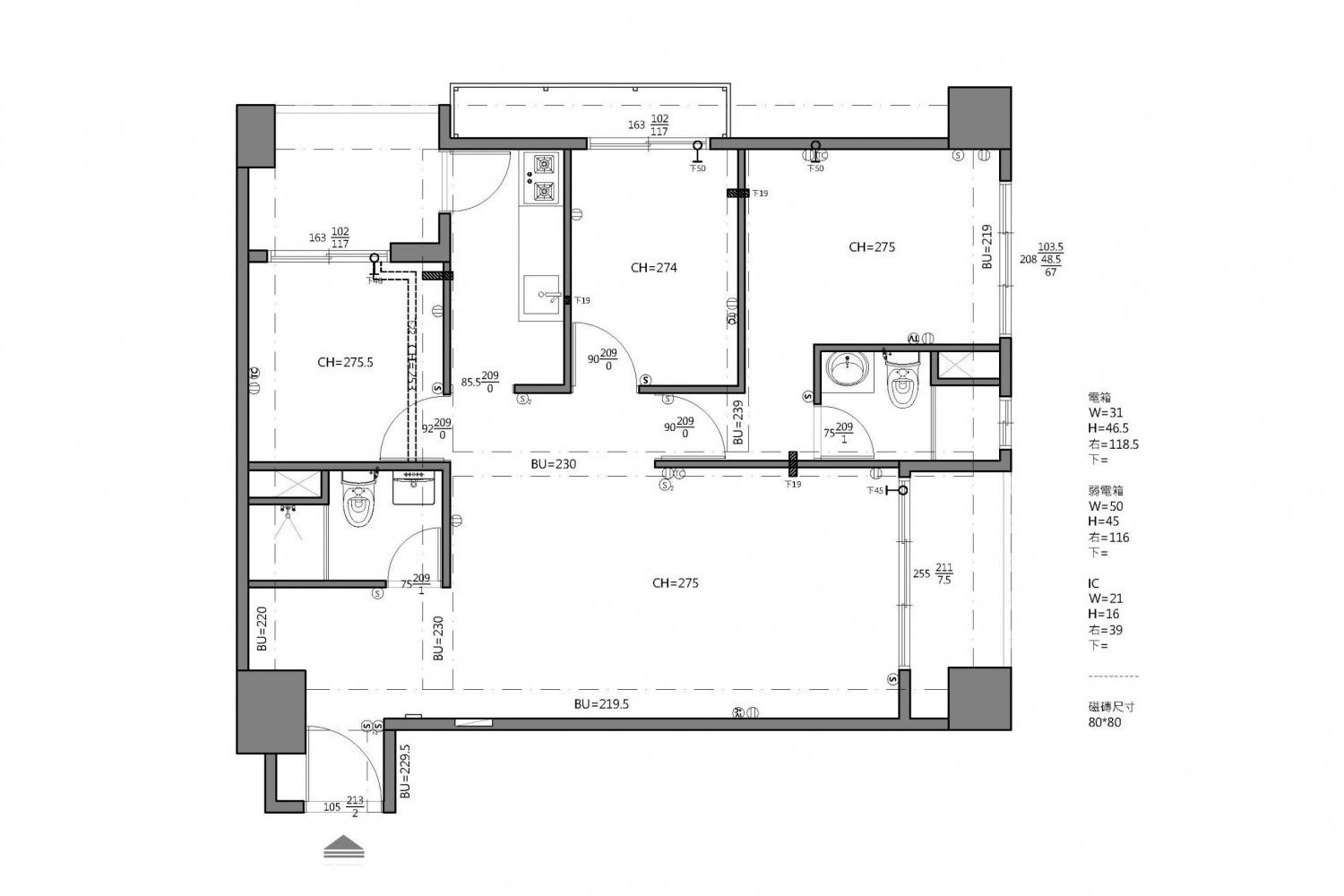
37坪
坪數
3房2廳2衛
格局
費用分佈
| 明細 | 費用金額 |
|---|---|
| 施工費 | 198萬 |
設計方案


屋主訴求
設計思路




服務範圍
| 服務 | 說明 |
|---|---|
| 丈量服務 | 3000元 |
| 提案服務 | 免費 |
| 基礎工程 | 全屋保護:夾板 水電工程:新配管線、全室燈具線路及安裝、電視/電話/網路新增拉線及移位、全室冷氣管線、消防感知器/瓦斯偵測器移位+接線延長 木作工程:天花造型、電視牆、窗簾盒、木作壁板、沙發背板、床頭板 油漆工程:天花+牆面批土油漆、電視牆+沙發背板+造型床頭板批土噴漆、窗簾盒+天花造型+木作壁板批土刷漆、特殊漆調色 |
| 監工服務 | 按總工程費8%收取 專人監工,每週於line群組匯報工程進展及提供現場照片 |
| 裝修保固 | 保固1年 |
*服務範圍屬定製化服務,以設計師和業主洽談方案為準
施工過程
