淺色木質鋪陳日常,開放格局讓生活自在流動
日式風
風格
毛胚屋
屋況
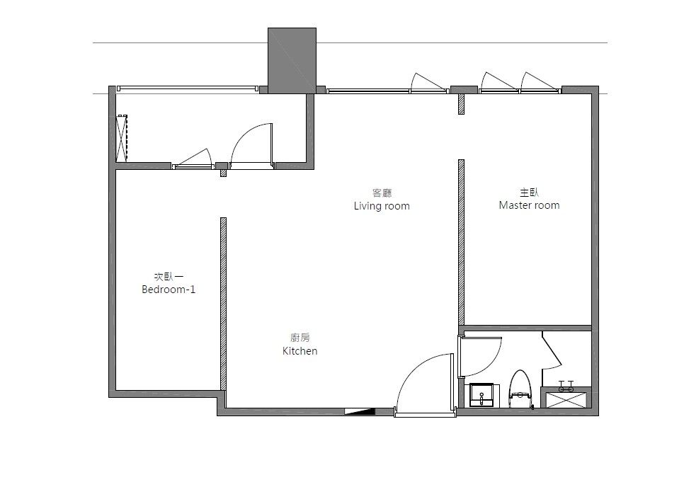
16坪
坪數
2房2廳1衛
格局
費用分佈
| 明細 | 費用金額 |
|---|---|
| 設計費 | 6萬 |
| 施工費 | 99.5萬 |
| 其他 | 4.5萬(稅金) |
設計方案


屋主訴求
設計思路




服務範圍
| 服務 | 說明 |
|---|---|
| 丈量服務 | 3000元(設計簽約100%折抵) |
| 提案服務 | 0.3萬(設計簽約100%折抵) 3套平面方案、1套專屬空間簡報 |
| 基礎工程 | 部分拆除:隔間牆 局部保護:陽臺、衛浴 水電工程:全屋配管配電 木作工程:天花板、隔間、門扇 泥作工程:全室地坪 油漆工程:天花板、牆面、局部木作門片 |
| 監工服務 | 5萬(6%監工) 指定設計師監工、每週五總結匯報更新案場照片 |
| 裝修保固 | 保固1年 |
*服務範圍屬定製化服務,以設計師和業主洽談方案為準
施工過程

作品開箱

【開箱】餐桌椅取代沙發、廚房改開放+中島,收納多又開闊!16坪日式宅溫馨好住
2024-05-04