一鍵同款一鍵同款一鍵同款設計
分享
下載
Harmony.
台中市
北歐風
現代風
商業空間
油漆
乳膠漆
花磚
壁紙
超耐磨木地板
鐵建
木作貼皮
烤漆
磁磚
系統板材
木百葉
人造石
軌道燈
石材
一鍵同款一鍵同款一鍵同款設計

明亮且具有居家舒適感的辦公空間

現代風

風格

新成屋

屋況

23坪

坪數

3房2廳

格局

成員1大人

費用分佈

總費用 295萬單坪12.8萬
我家裝修報價我家裝修報價
明細費用金額
施工費63.2萬
材料費231.8萬

設計方案

設計方案
loading
Before
loading
After

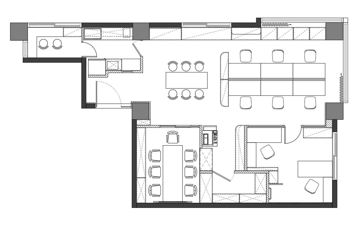
屋主訴求屋主訴求

1.希望具有居家舒適感或咖啡廳的辦公環境。 2.可對客戶展現出多元材質交織出的工藝細節。 3.空間必須明亮且保有光影層次。 4.要有能具備社交功能的中島區。 5.具靈活用途的窗邊休閒臥榻。

設計思路設計思路

1.期望打破辦公空間一成不變的框架,結合「展示間」的概念,打造兼具美學與實用的設計實驗場域。 2.整體採用混搭手法,選用多元材質交織出層次豐富的視覺,展現材料本真的質地。 3.將茶水間提升為「社交中島」,運用異材質結合營造放鬆的居家氛圍,打破辦公室的嚴肅感。 4.開放式辦公區強調協作與交流,茶水間與吧台區則讓緊湊的工作中,能有對話的餘裕。 5.主管辦公區與會議室則以簡約俐落的設計主軸,維持專業感與
空間效果
測一測我適合哪種風格?
loading
loading
loading
1.大門採用深色木質格柵與厚實的門框設計,形成一個穩重的框景。 2.水泥質感牆、暖木紋、紅色塗料與玻璃磚,異材質與色彩的「幾何碰撞」。 3.在端景牆兩側與天花板接界嵌入燈條,營造出空間正在呼吸的輕盈光感。

服務範圍

服務說明
丈量提案1萬 三套設計方案 (平面配置圖+設計意象)
基礎工程前置工程 輕隔間工程 門窗工程 泥作工程 水電工程 木作工程 金屬/玻璃工程 油漆工程 系統櫃工程 燈具工程 五金/材料工程 清潔工程 設備工程
裝修保固保固1年

*服務範圍屬定製化服務,以設計師和業主洽談方案為準

施工過程

施工過程
保護工程
梯廳保護
木作工程
隔間施作+造型天花板
水電工程
全室配線
冷氣工程
主機安裝
相關作品推薦
同公司
同風格·現代風
同預算 · 295萬