· 多功能中島、擁海量收納的法式質感宅
法式鄉村
風格
新成屋
屋況
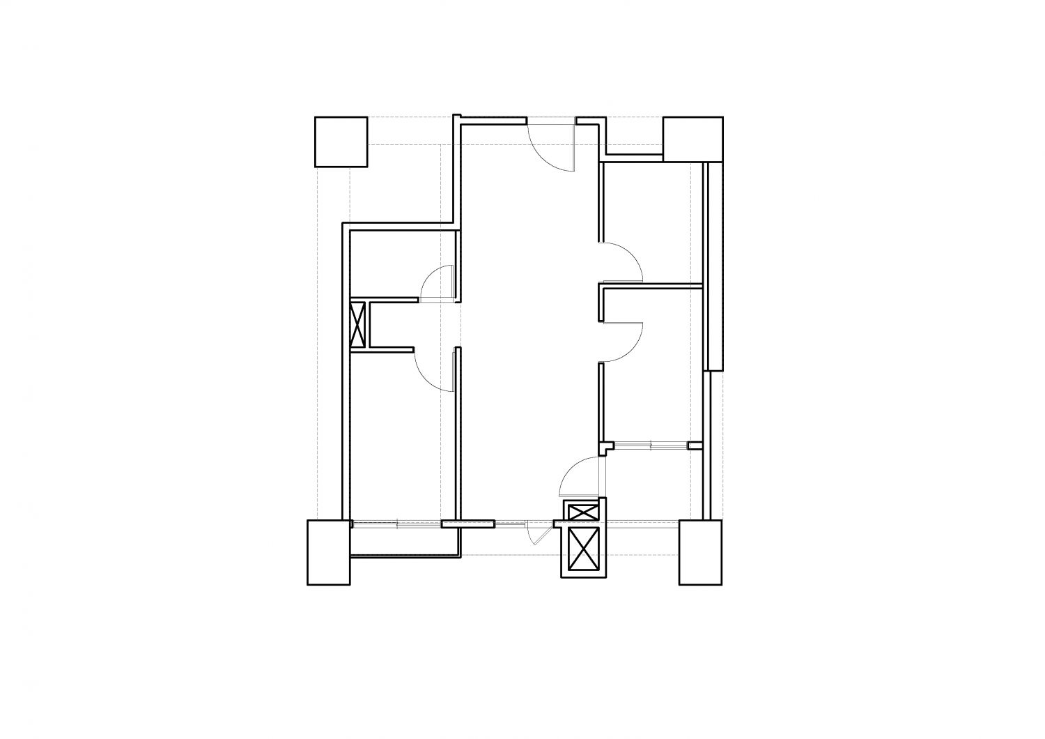
15坪
坪數
2房2廳1衛1陽台
格局
費用分佈
| 明細 | 費用金額 |
|---|---|
| 設計費 | 5萬 |
| 施工費 | 暫未披露,詳情可洽詢公司 |
| 其他 | 客變費2萬 |
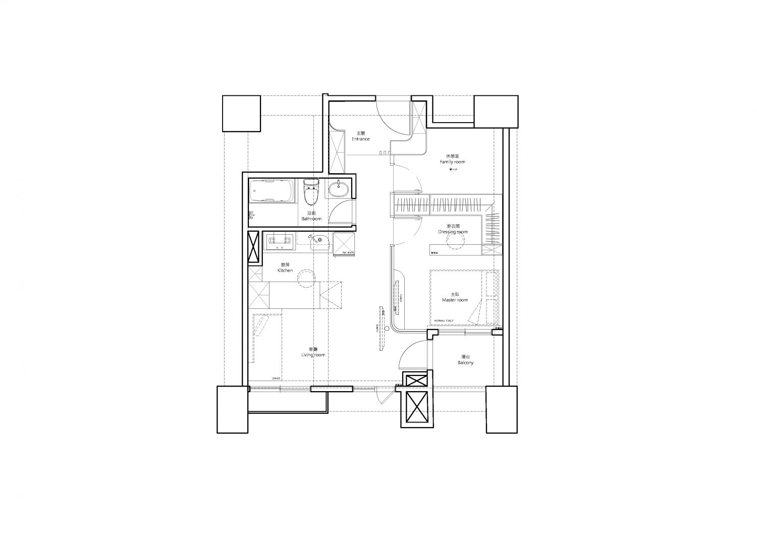
設計方案


屋主訴求
設計思路




服務範圍
| 服務 | 說明 |
|---|---|
| 基礎工程 | 保護工程: 梯間2分夾板+防潮布+塑膠瓦愣板 水電工程: 開關插座、燈具及智能迴路 泥作工程: 浴室整室打底貼磚、玄關局部六角磚 木作工程: 全室造型隔間、天花及收納櫃 油漆工程: 全室刷新、主牆跳色 冷氣工程: 全室分離式冷氣及淨化箱配置 廚具工程: 新作廚具櫃、全崁式洗碗機 地板工程: 進口石塑木地板 清潔工程: 全室清潔 雜項工程: 百葉窗、智能居家系統、電控玻璃 |
| 監工服務 | 按總工程費5~8%收取 |
| 裝修保固 | 保固1年 |
*服務範圍屬定製化服務,以設計師和業主洽談方案為準
施工過程
