算同款報價算同款報價
分享
下載
雲藏星謐

301-400萬

預算

現代風

風格

毛胚屋

屋況

24坪

坪數

3房2廳2衛

格局

設計理念:
屋主為台商夫妻,兩子在國外就學,居家以收納與現代風格為主。因吊隱式冷氣與全熱交換機降低樓高,透過客變,公共空間仍保持開闊流暢。設計採深色調結合隱形收納,兼顧美感與整潔。 客廳電視牆延伸至餐廳,整合收納與玻璃展示櫃;餐廳中島連接餐桌,融合收納、小洗手槽與電磁爐,滿足分區清洗與使用便利。主臥床頭以隔柵線條、石紋材質及金色飾條延伸至梳妝台,營造大氣感;兒子房透過墊高臥榻與吊櫃設計,增加收納並保持空間輕盈

允庭設計 已做裝修登記排名

52套作品
3篇開箱
提供樣板間參觀
一年內保固
接客變案
專人監工
簽訂合約保障
初步報價
深度傾聽需求
驗收再付
完工保固
整屋費用:接案150萬起
設計費用:4000 元/坪起
新成屋:6萬/坪起
毛胚屋:10萬/坪起
老屋翻新:10萬/坪起
接案區域:台北市、基隆市、新北市、桃園市
請設計師聯絡我
線上諮詢

設計方案

設計方案

屋主訴求屋主訴求

- 購買預售屋作為返國落腳處,需考量空間機能性與舒適感。 - 希望有充足的收納空間,並能固定擺放各式廚電。 - 追求沉穩現代風格及深色系配色。

設計思路設計思路

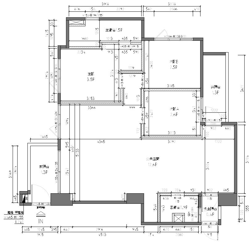
- 保留原有3房2廳2衛的格局,調整衛浴與次臥大小,增設儲藏室。 - 客廳與餐廚區域設計開放式,增設中島並配備IH爐、水槽。 - 書房設計採開放式,設有長書桌及立地書櫃。 - 主臥配有推拉門衣櫃及梳妝桌,次臥設有架高地板以增加收納。
loading

設計亮點設計亮點

- 客廳電視牆以深黑色櫃體結合鏤空與玻璃門,減輕視覺厚重感。 - 利用黑鏡材質延伸空間感,並將不同區域串連。 - 天花板運用燈具變化,營造層次感。 - 儲藏室入口刷抹藝術塗料,提升視覺連貫性。
空間效果
測一測我適合哪種風格?
loading
loading
loading
loading

作品開箱

作品開箱
data.title

24坪擁高坪效3房,還有獨立儲藏室+高機能餐廚!深色系現代風質感宅帶你看

2024-04-11

相關作品推薦
同公司
同風格·現代風
同預算 · 301-400萬