設計師柳靜慧從業12年
50年老屋翻新,重塑清新明亮舒適宅
混搭風
風格
老屋翻新
屋況
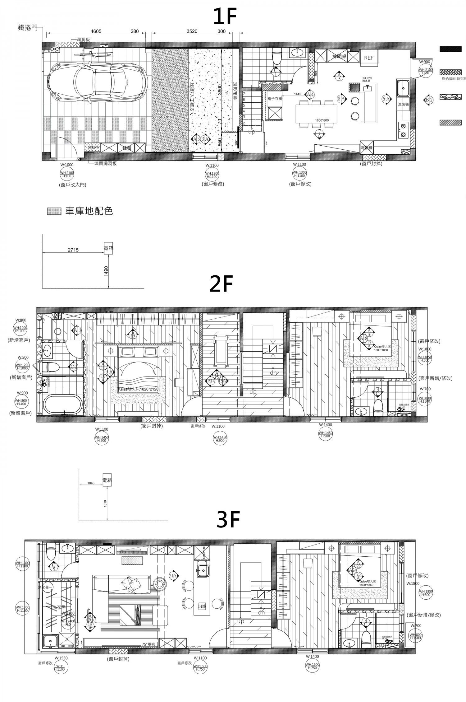
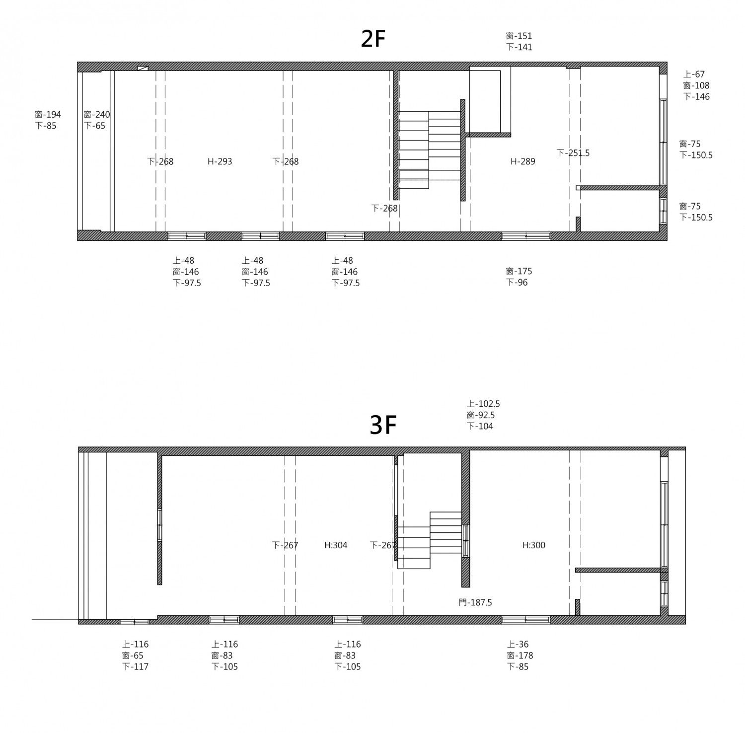
66坪
坪數
3房2廳5衛
格局
費用分佈
| 明細 | 費用金額 |
|---|---|
| 設計費 | 23萬 |
| 施工費 | 727萬(含外觀拉皮頂樓防水) |
設計方案


屋主訴求
設計思路



服務範圍
| 服務 | 說明 |
|---|---|
| 基礎工程 | 拆除工程 保護工程 泥作工程 水電工程 木作工程 系統工程 衛浴設備 廚房設備工程 油漆工程 防水工程 |
| 監工服務 | 工程管理費8% 項目主管專人監工、每天在line群組匯報工程進展 |
| 裝修保固 | 保固1年 |
*服務範圍屬定製化服務,以設計師和業主洽談方案為準
施工過程
建材配備
| 品類 | 品牌 | 空間 |
|---|---|---|
| 油漆 | 虹牌水泥漆 | 全室 |
| 油漆 | 仿石漆 | 外觀 |
