設計師林哲緯 先生從業19年國立成功大學碩士
淺木灰白純粹音樂宅
現代風
風格
老屋翻新
屋況
31坪
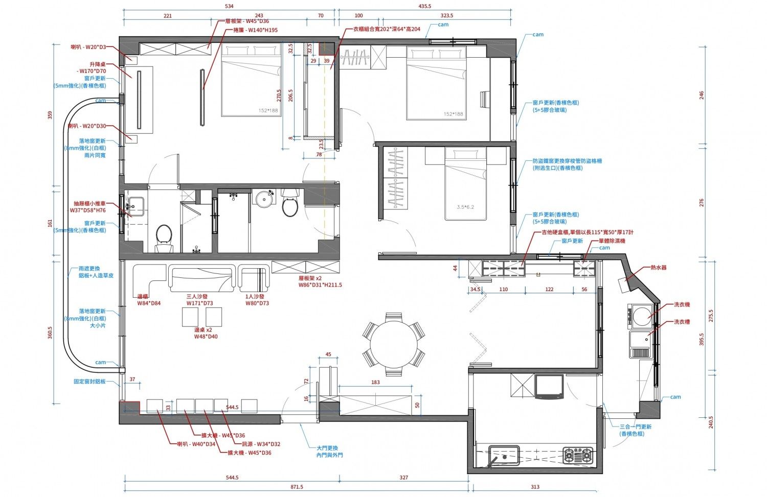
坪數
3房2廳2衛2陽台
格局
費用分佈
| 明細 | 費用金額 |
|---|---|
| 設計費 | 15萬 |
| 施工費 | 278萬(連工帶料) |
設計方案


屋主訴求
設計思路




服務範圍
| 服務 | 說明 |
|---|---|
| 丈量服務 | 3000元 |
| 提案服務 | 0.3萬 2~3套平面方案、一組風格參考圖(非3D效果圖) |
| 基礎工程 | 全屋保護:全屋防潮佈、塑膠瓦楞板、 水電工程:全屋電盤及線路更新、冷熱給水線路更新 木作工程:全室天花板、全室門組、櫃體5組 泥作工程:全室地坪整平、衛浴地壁磚、廚房地壁磚、陽台地磚 油漆工程:全室油漆、特殊塗料 |
| 監工服務 | 總工程款10% 項目主導人監工/一周到場2~3次(視現場需求調整)/每周匯報一次 |
| 裝修保固 | 保固1年 |
*服務範圍屬定製化服務,以設計師和業主洽談方案為準
施工過程
