· 空間簡潔柔和,收納與活動機能完善
新成屋
屋況
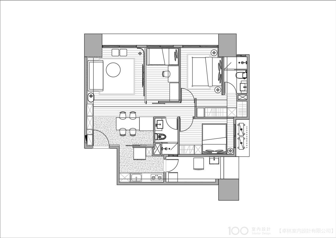
18坪
坪數
3房2廳2衛
格局

卓林室內設計
費用分佈
| 明細 | 費用金額 |
|---|---|
| 設計費 | 暫未披露,詳情可洽詢公司 |
| 施工費 | 暫未披露,詳情可洽詢公司 |
設計方案


屋主訴求
設計思路




服務範圍
| 服務 | 說明 |
|---|---|
| 基礎工程 | 保護/拆除/清潔工程 水電工程 隔間/天花/門扇工程 木作工程(科技木皮) 油漆工程(ICI乳膠漆) 系統櫃工程 廚具工程(結晶鋼烤門板) 燈具/開關面板工程 金屬/木地板/玻璃及五金採購 |
| 監工服務 | 按總工程費8%收取 |
| 裝修保固 | 保固1年 |
*服務範圍屬定製化服務,以設計師和業主洽談方案為準
施工過程
