設計師周倚瑄
為貓與人打造一處安穩共處的生活空間
北歐簡約
風格
中古屋
屋況
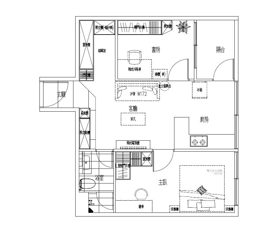
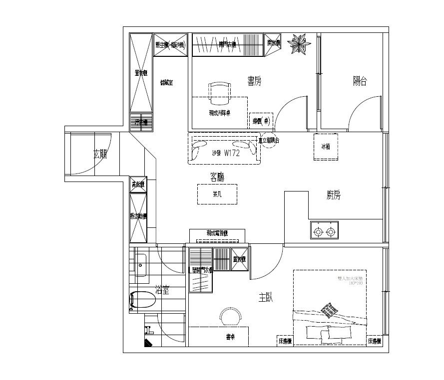
16坪
坪數
2房1廳1衛1陽台
格局
費用分佈
| 明細 | 費用金額 |
|---|---|
| 設計費 | 8.4萬 |
| 施工費 | 148萬(以上包含稅金以及工程管理費) |
設計方案


屋主訴求
設計思路


服務範圍
| 服務 | 說明 |
|---|---|
| 丈量服務 | 3000元 |
| 提案服務 | 免費 2-3套設計方案、工程報價單 |
| 基礎工程 | 部分拆除:浴室拆除、書房隔間拆除 公設保護:防潮布、塑膠瓦楞板、一分板 水電工程:全室燈具安裝、插座網路電話電視等新增或位移、衛浴設備安裝 木作工程:書房隔間 系統櫃:全室櫃體 門組工程:後製門 廚具:廚具櫃體 油漆工程:全室天花板、牆面 |
| 監工服務 | 按總工程費8%收取 項目主管專人監工、不定期在line群組匯報工程進展 |
| 裝修保固 | 保固1年 |
*服務範圍屬定製化服務,以設計師和業主洽談方案為準
施工過程
建材配備
| 品類 | 品牌 | 空間 |
|---|---|---|
| 乳膠漆 | 得利 | 全屋 |
| 燈具 | 舞光 | 全屋 |
| 爐具 | SAKURA櫻花 | 廚房 |
| 馬桶 | CAESAR凱撒 | 衛浴 |
| 面盆 | OVO京典衛浴 | 衛浴 |
| 面板 | PANASONIC | 全屋 |
| 地板 | AGT | 全屋 |
