淡奶茶色清新療癒宅
現代簡約
風格
老屋翻新
屋況
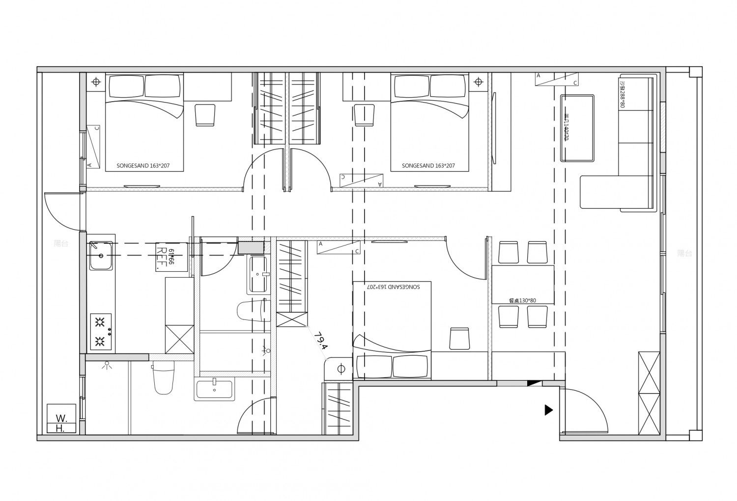
25坪
坪數
3房2廳2衛1陽台
格局
費用分佈
| 明細 | 費用金額 |
|---|---|
| 設計費 | 5萬 |
| 施工費 | 180萬(連工帶料) |
設計方案


屋主訴求
設計思路

服務範圍
| 服務 | 說明 |
|---|---|
| 基礎工程 | 全屋拆除 水電工程:拉大電、全室重新配水電線路 木作工程:全室天花板 泥作工程:浴室2間 冷氣工程:排水及銅管暗管配置 油漆工程 清潔清運 |
| 監工服務 | 按總工程費8%收取 項目主管專人監工、在line群組匯報工程進展 |
| 裝修保固 | 保固1年 非天災人為及動植物因素造成之損壞 |
*服務範圍屬定製化服務,以設計師和業主洽談方案為準
施工過程
