· 純色空間以極簡語彙,展現靜謐與和諧之美
新成屋
屋況
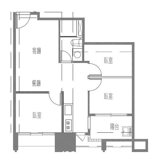
13坪
坪數
2房2廳1衛
格局

一暮設計 iimóó
設計師Bonny Yu 從業11年
費用分佈
| 明細 | 費用金額 |
|---|---|
| 設計費 | 暫未披露,詳情可洽詢公司 |
| 施工費 | 暫未披露,詳情可洽詢公司 |
設計方案


屋主訴求
設計思路

服務範圍
| 服務 | 說明 |
|---|---|
| 丈量提案 | 6000萬(正式簽約可全額折抵) 1-3套平面配置規劃、風格簡報提案討論 |
| 基礎工程 | 拆除工程: 踢腳板拆除 水電工程: 全室燈光弱電線路、燈具安裝、空調 木作工程: 木作包樑、空調管線包覆 油漆工程: 天花壁面得利水泥漆 其它工程: 廚具中島檯面訂制 清潔工程: 全屋細清、垃圾清運 |
| 監工服務 | 按總工程費10%收取 項目設計師及工務專人監工、定期在line群組匯報工程進展 |
| 裝修保固 | 保固1年(有裝修施工的所有地方) 有裝修施工的所有地方 |
*服務範圍屬定製化服務,以設計師和業主洽談方案為準
