設計師Henry
黃、綠、深木色搭配,北歐與美式的慵懶結合
現代風
風格
新成屋
屋況
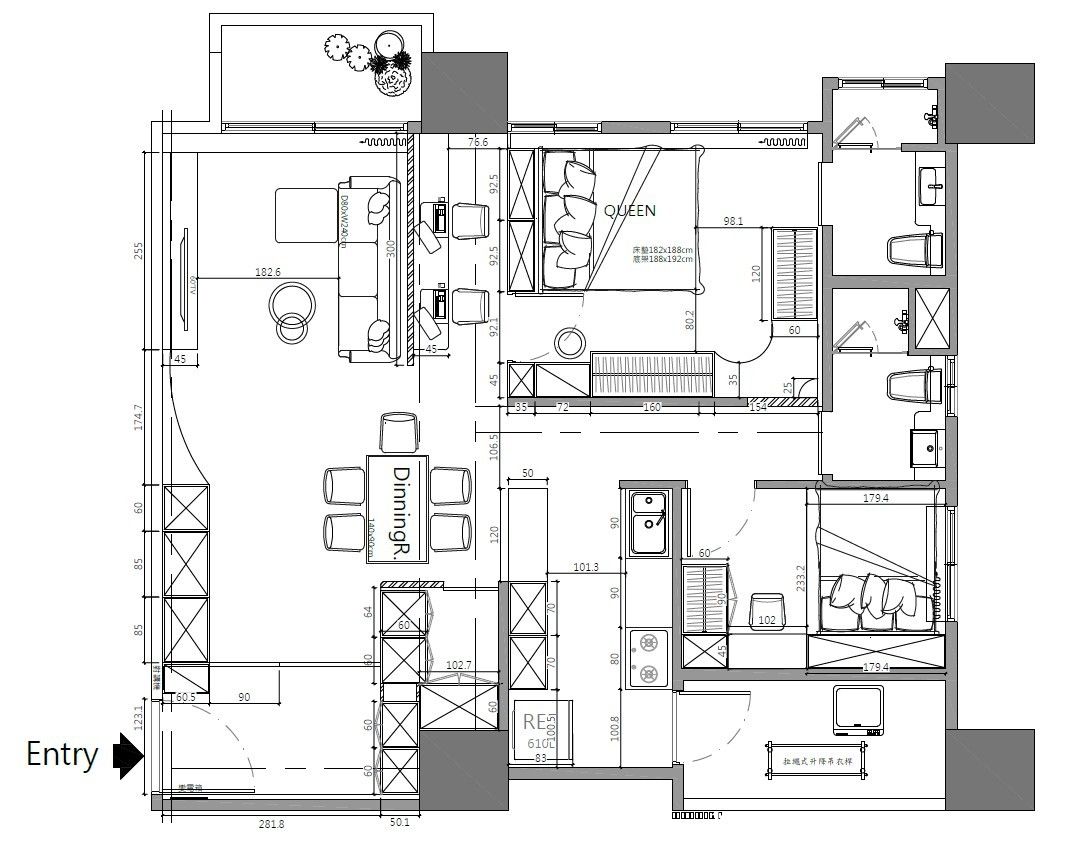
24坪
坪數
2房2廳2衛
格局
費用分佈
| 明細 | 費用金額 |
|---|---|
| 設計費 | 7.7萬 |
| 施工費 | 拆除12萬+泥作4萬+水電25萬+木作50萬+油漆24萬+系統15萬+木地板12萬 |
| 材料費 | 104萬 |
| 其他 | 20萬 |
設計方案


屋主訴求
設計思路


服務範圍
| 服務 | 說明 |
|---|---|
| 丈量服務 | 4000元 |
| 提案服務 | 0.4萬 三套設計方案、3D效果圖 |
| 基礎工程 | 部分拆除:局部牆面拆除 全屋保護:中空板+甲板 水電工程:燈具、插座、廚具 木作工程:天花造型、隔間、美式造型線板、系統櫃、木作櫃體 泥作工程:玄關花磚 油漆工程:烤漆 鐵件工程:玻璃屏風 |
| 監工服務 | 按總工程費8%收取 專人監工、每天在line群組匯報工程進展 |
| 裝修保固 | (系統櫃板材:10年,結構五金:3年,其他工程:1年) |
*服務範圍屬定製化服務,以設計師和業主洽談方案為準
施工過程

作品開箱

我家好像咖啡廳,收納、美感都兼具!22坪混搭風質感宅開箱
2024-11-25