· 現代人文的底蘊,放鬆壓力的抒壓宅
新成屋
屋況
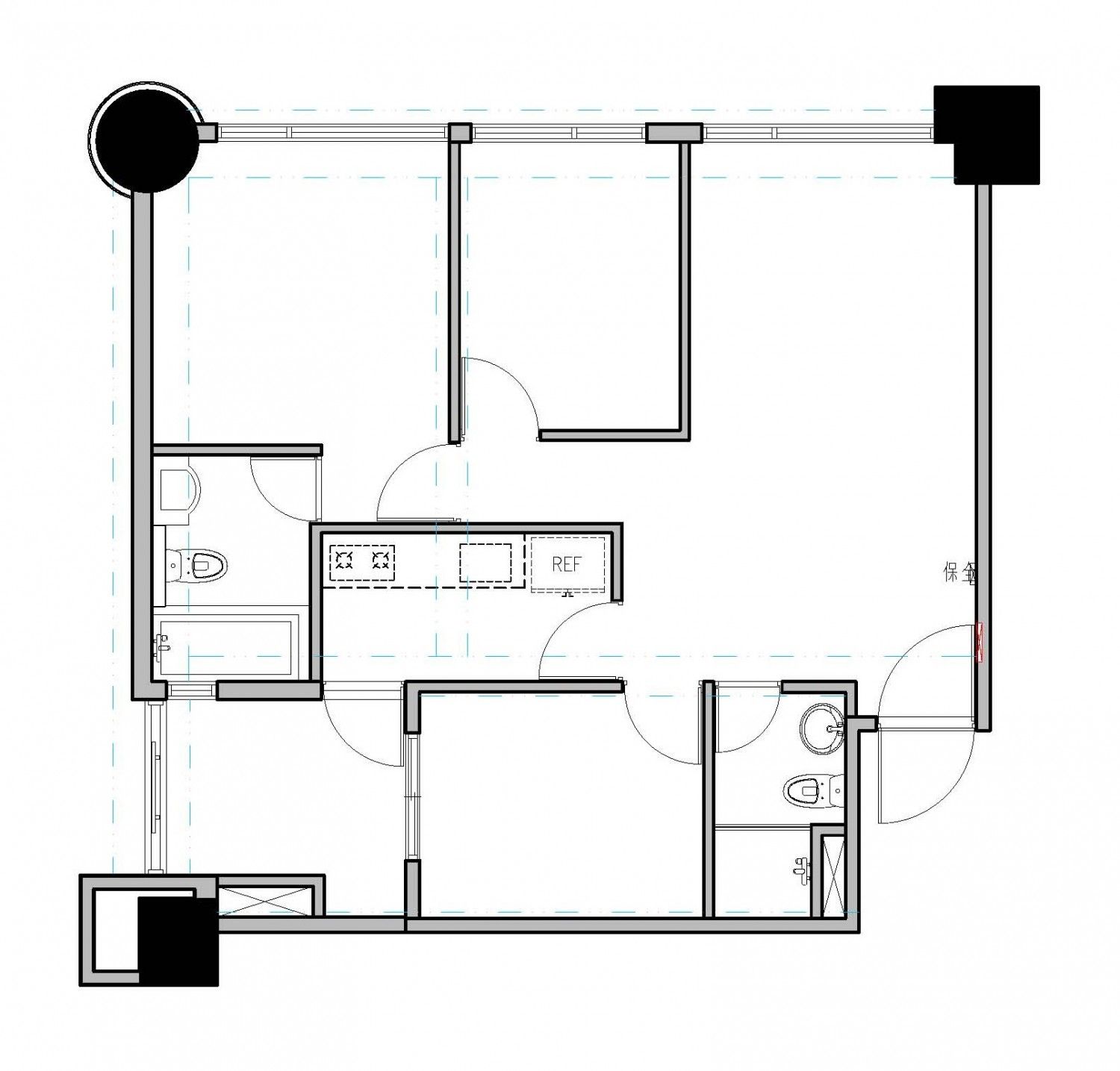
22坪
坪數
3房2廳2衛
格局

詠丰室內設計
費用分佈
| 明細 | 費用金額 |
|---|---|
| 設計費 | 10萬 |
| 施工費 | 105萬 |
設計方案


屋主訴求
設計思路



服務範圍
| 服務 | 說明 |
|---|---|
| 基礎工程 | 拆除工程: 部分牆面及門框門片拆除 燈具工程: 全室燈具 水電及弱電工程: 全室插座及弱電線路、燈源線路 木作工程: 隔間、木作造型、木作天花、木作櫃體 油漆工程: 天花壁面乳膠漆、得利調色漆、木皮漆、噴漆 其他工程: 鐵件、玻璃、壁紙 清潔工程: 全屋細清、垃圾清運 |
| 監工服務 | 工程費3%~8%收取 項目設計師專人監工、定期在line群組匯報工程進展 |
| 裝修保固 | (保固半年~1年) |
*服務範圍屬定製化服務,以設計師和業主洽談方案為準
