米色搭配木、藤編等自然材質,營造療癒氛圍
現代風
風格
新成屋
屋況
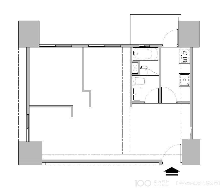
16坪
坪數
3房2廳1衛
格局
費用分佈
| 明細 | 費用金額 |
|---|---|
| 設計費 | 詳洽設計公司 |
| 施工費 | 詳洽設計公司 |
設計方案


屋主訴求
設計思路




服務範圍
| 服務 | 說明 |
|---|---|
| 基礎工程 | 拆除工程 配管 隔間/天花工程 木作工程 油漆工程 系統櫃工程 燈具工程 除甲醛工程 |
| 監工服務 | 按總工程費8%收取 |
| 裝修保固 | 保固1年 |
*服務範圍屬定製化服務,以設計師和業主洽談方案為準
施工過程

作品開箱

不用斷捨離!16坪奶茶宅四人三房,還能多間儲藏室
2025-03-16