一鍵同款一鍵同款套用這個風格
分享
下載
奶茶極簡無印風
新北市
一鍵同款一鍵同款套用這個風格

奶茶色&米色調結合的日式無印簡約宅

日式無印

風格

老屋翻新

屋況

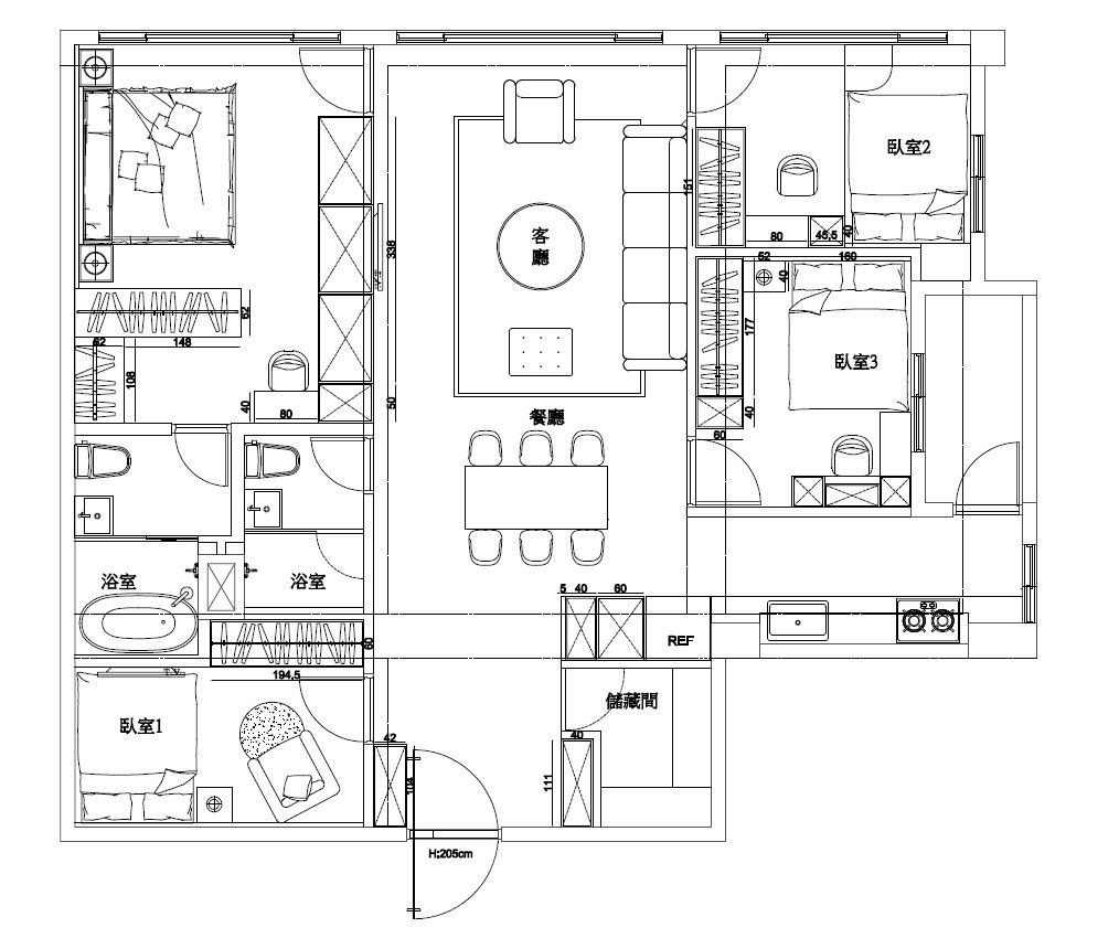
32坪

坪數

4房2廳2衛1陽台

格局

成員4大人

費用分佈

總費用 300萬單坪9.4萬
我家裝修報價我家裝修報價
明細費用金額
設計費10萬
施工費180萬
材料費80萬
其他30萬

設計方案

設計方案
loading
Before
loading
After

屋主訴求屋主訴求

●開放式的客、餐、廚 ●多一空間做儲藏室 ●主臥室需要獨立更衣室 ●現代簡約偏木質風格

設計思路設計思路

●自然木紋材質 ●簡約佈局,客廳、餐廳、廚房無界相連 ●隱藏門與電視牆合而為一 ●以米色素色為基調,搭配淺木色地板與傢俱 ●日式無印的簡約風格
空間效果
測一測我適合哪種風格?
loading
loading
1. 鋪設幾何六角磚界定玄關落塵區,結合木地板平整拼接明確劃分內外空間動線。 2. 運用大面積木紋材質包覆兩側牆面並隱藏收納櫃體,維持立面俐落感與視覺延伸。 3. 透過櫃底懸空設計預留掃地機器人基地,搭配中段透光端景優化日常收納與照明機能。

服務範圍

服務說明
丈量服務免費
提案服務免費
基礎工程部分拆除:牆面及衛浴拆除 全屋保護:全屋塑膠瓦楞板 水電工程:廚房、衛浴線路 木作工程:木作及系統櫃 泥作工程:全室地板、衛浴 油漆工程:全室油漆、部分特殊漆
監工服務按總工程費8%收取 項目主管專人監工、每天在line群組匯報工程進展
裝修保固保固1年

*服務範圍屬定製化服務,以設計師和業主洽談方案為準

施工過程

施工過程
泥作工程
泥作工程
水電工程
水電工程
木作工程
木作工程
油漆工程
油漆工程
地坪工程
木地板工程
相關作品推薦
同公司
同風格·日式風
同預算 · 300萬