算同款報價算同款報價
分享
下載
one day hotel

未披露

預算

現代風

風格

老屋翻新

屋況

72坪

坪數

3房2廳2衛

格局

時冶設計 已做裝修登記

31套作品
20篇開箱
一年內保固
總監1對1溝通
生活習慣調查
3D透視圖
深度傾聽需求
階段檢核
簽訂合約保障
整屋費用:接案150萬起
設計費用:5000 元/坪起
新成屋:6萬/坪起
老屋翻新:10萬/坪起
毛胚屋:10萬/坪起
接案區域:北部可接案
請設計師聯絡我
線上諮詢

設計方案

設計方案

屋主訴求屋主訴求

1. 希望將空間改造成民宿使用 2. 空間需呈現年輕的感覺

設計思路設計思路

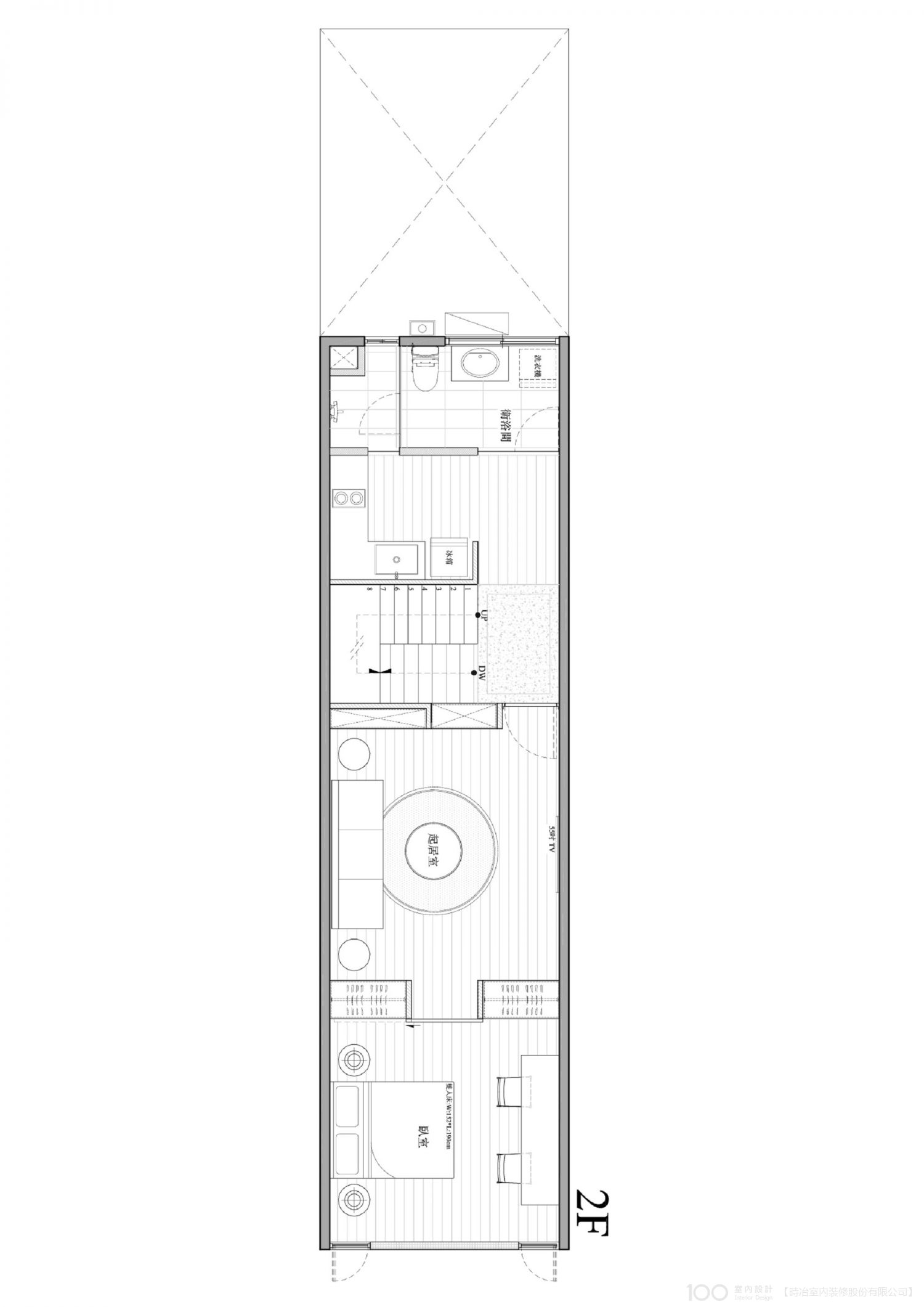
1. 保留舊有家格局,結合民宿功能,讓家人與旅客各自享受生活。 2. 使用透光度高的玻璃磚和鋁窗,增加採光,改善空間的明亮度。 3. 設計小起居室及藝廊區,提供親子互動及藝術展示的空間。

設計亮點設計亮點

1. 花磚地坪作為玄關的視覺緩衝,增加空間的層次感。 2. 大面積的白牆與玻璃材質,讓光線無限延伸並放大空間感。 3. 空中花園的改造,將舊陽台變成露天小花園,增添生活情趣。
空間效果
測一測我適合哪種風格?
loading
loading
loading

作品開箱

作品開箱
data.title

舊格局沒關係,用材質還給老家輕透亮!

2018-05-28

相關作品推薦
同公司
同風格·現代風