· 在光影與材質,藏入現代輕奢的溫柔語彙
新成屋
屋況
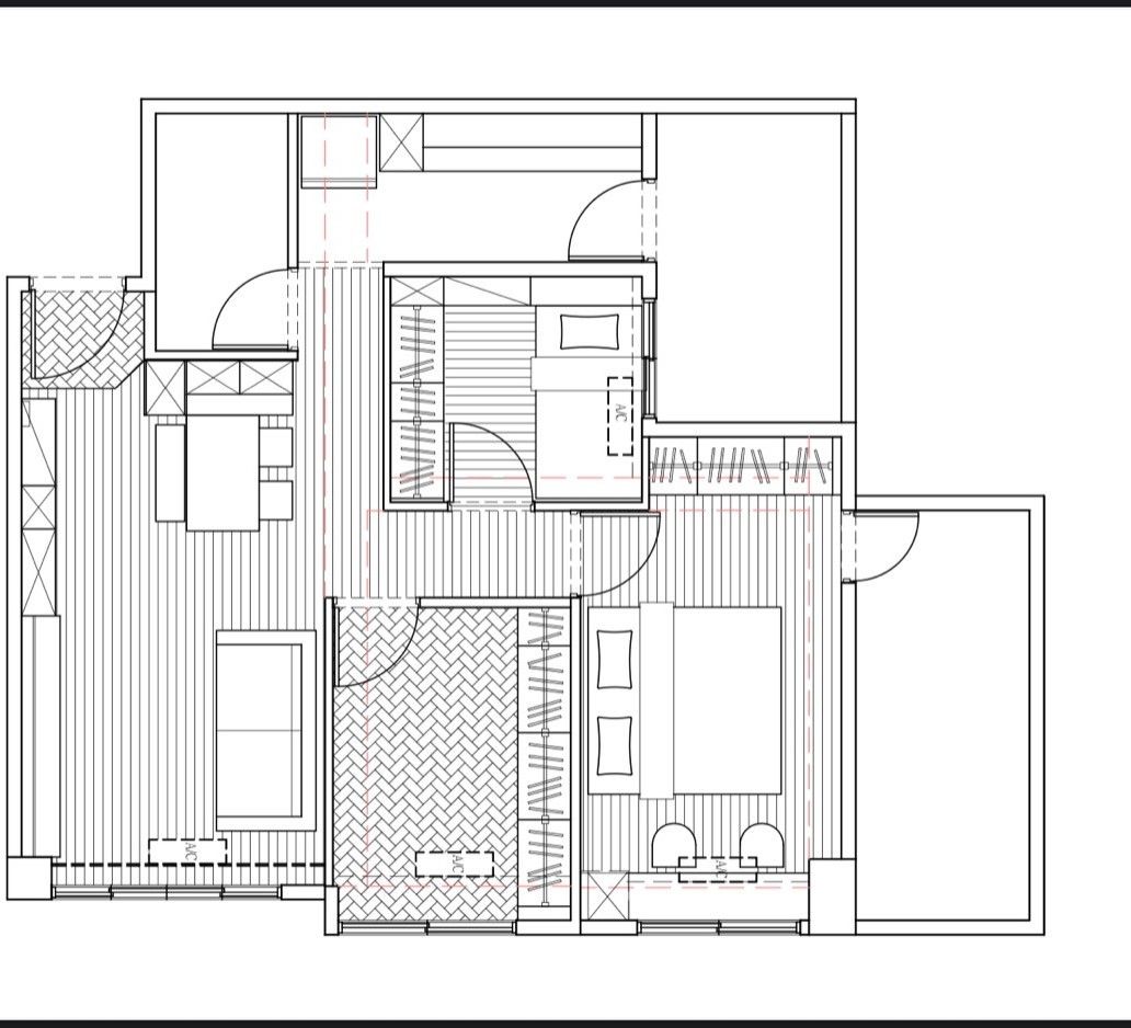
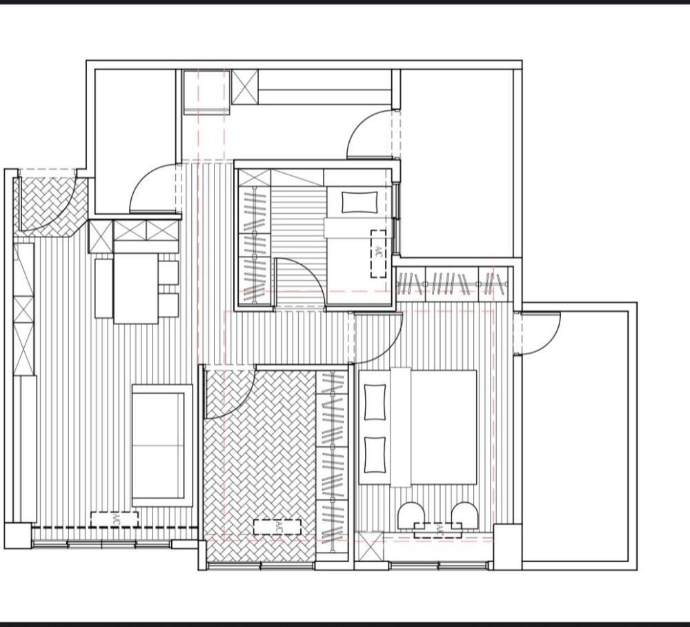
26坪
坪數
3房2廳2衛
格局

綠的傢俱-室內設計 | 系統傢俱 | 廚房規劃
費用分佈
| 明細 | 費用金額 |
|---|---|
| 施工費 | 42萬 |
| 材料費 | 96萬(系統傢俱) |
設計方案

屋主訴求
設計思路


服務範圍
| 服務 | 說明 |
|---|---|
| 丈量服務 | 免費 |
| 提案服務 | 免費 |
| 基礎工程 | 全屋保護:全屋防潮佈、塑膠瓦楞板 木作工程:全室系統櫃、天花板工程、電視牆面工程 油漆工程:全室油漆 |
| 裝修保固 | 保固1年(裝潢工程保固一年、系統櫃櫃體結構保固十年) |
*服務範圍屬定製化服務,以設計師和業主洽談方案為準
施工過程
