· 層次堆疊燈光X清新彩調質感的溫馨混搭宅邸
東西方混搭
風格
新成屋
屋況
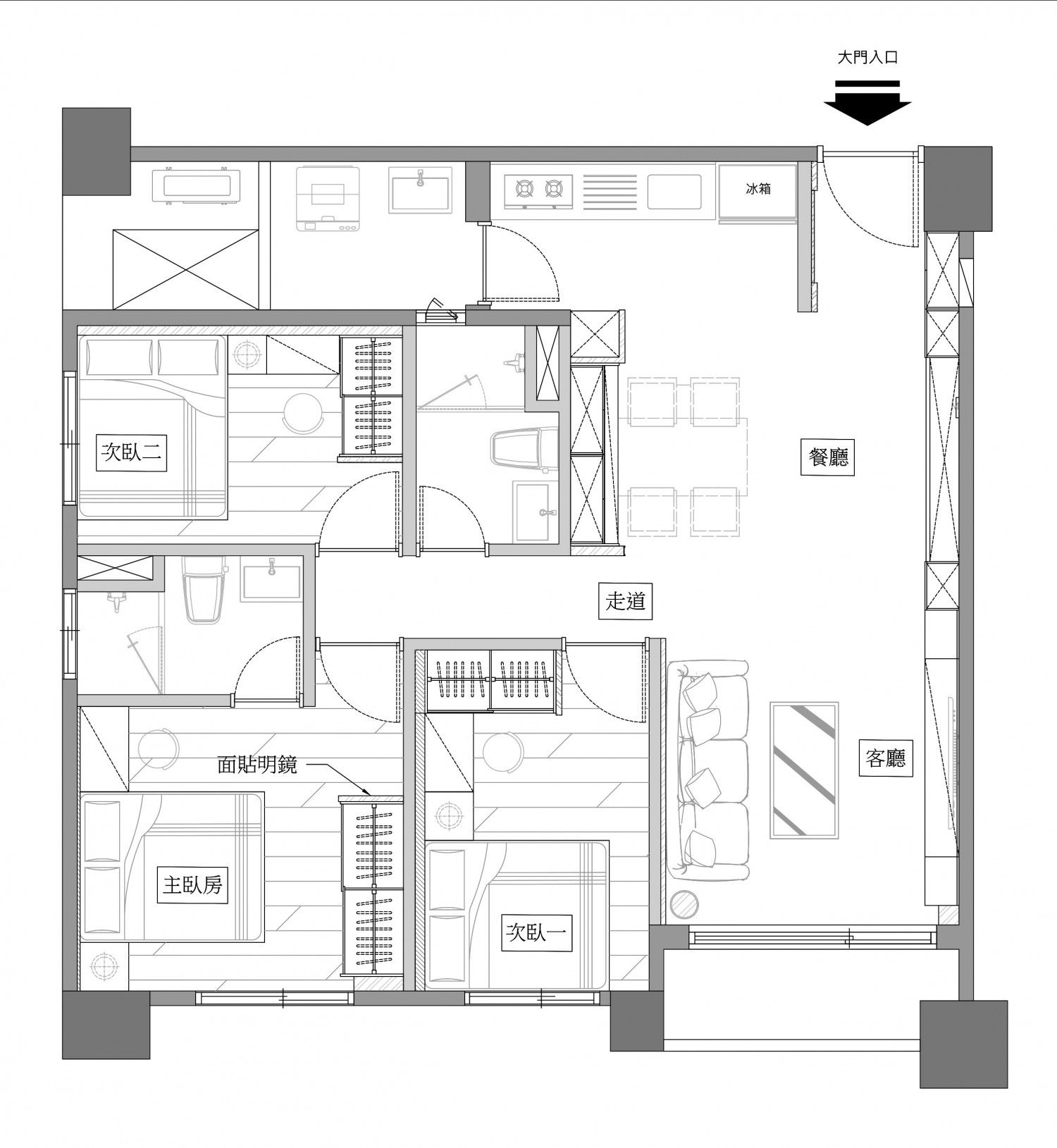
37坪
坪數
3房2廳2衛2陽台
格局

米雅室內設計
費用分佈
| 明細 | 費用金額 |
|---|---|
| 設計費 | 暫未披露,詳情可洽詢公司 |
| 施工費 | 暫未披露,詳情可洽詢公司 |
設計方案


屋主訴求
設計思路

服務範圍
| 服務 | 說明 |
|---|---|
| 基礎工程 | 全屋保護:全屋防潮、塑膠瓦楞板 水電工程:廚房、衛浴線路 木作工程:系統櫃5組 泥作工程:廁所及廚房 油漆工程:全屋刷新 |
| 監工服務 | 按總工程費10%收取 |
| 裝修保固 | 保固1年 |
*服務範圍屬定製化服務,以設計師和業主洽談方案為準
