算同款報價算同款報價
分享
下載
漫光拾暖

201-300萬

預算

日式風

風格

老屋翻新

屋況

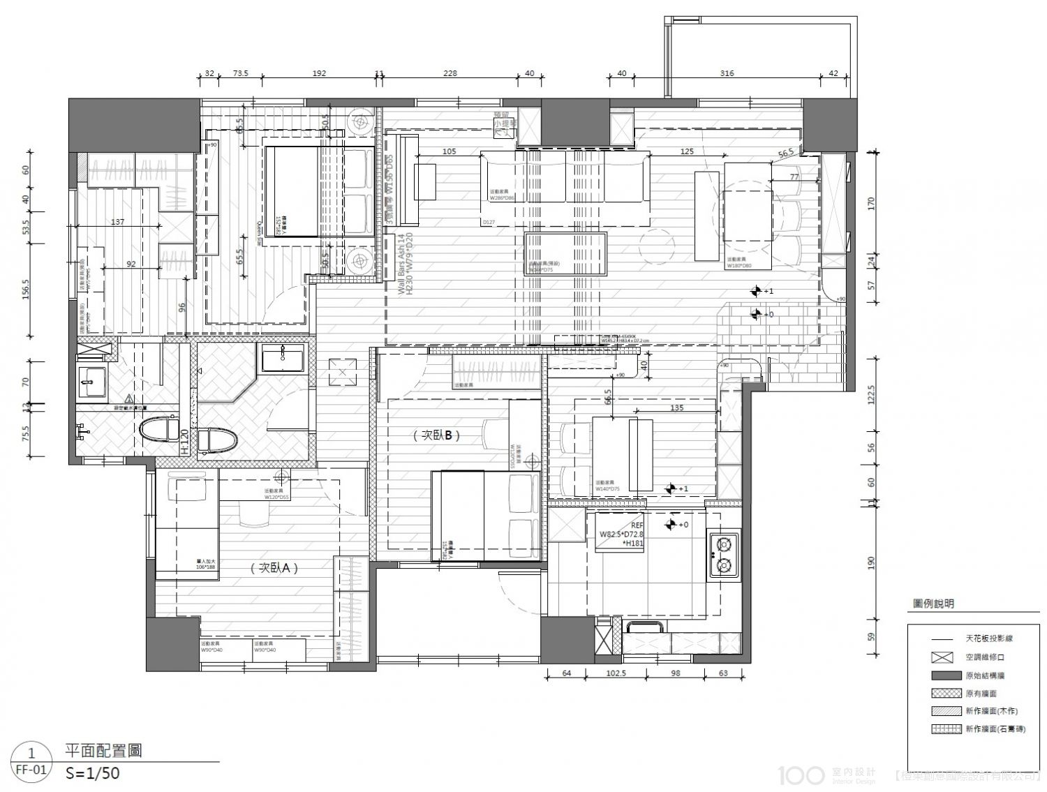
30坪

坪數

3房2廳2衛

格局

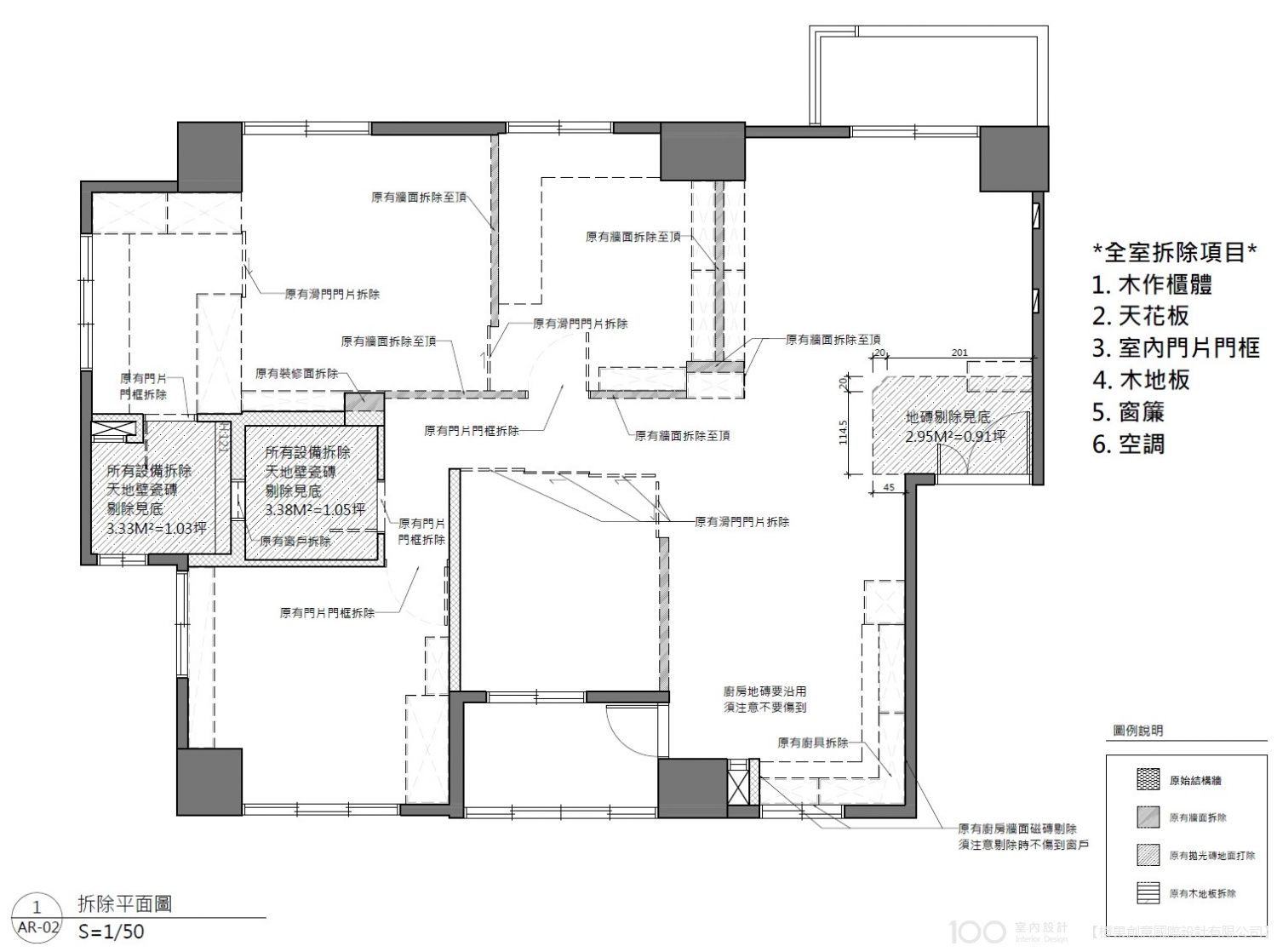
設計理念:
將長形房型整合為大空間,將空間打開,同時有不同功能的小角落。廚房旁新增輕食與休閒空間,在書桌活動能同時享受窗外美景。 電視牆放在比較不影響動線的地方,釋放一面牆面可做利用。電視牆以塗料呈現,弱化電視牆的存在感,放大空間。 轉角處以鏡面增添空間感,金屬條收邊提升耐用性。 玄關鞋櫃採弧形設計,動線流暢且安全。 天花板以曲面與圓形修飾吊燈,柔化視覺突兀感。 廁所格局調整翻新,優化動線與機能性。

橙果創意 已做裝修登記

31項設計大獎
54套作品
1篇開箱
穩定合作工班
一年內保固
專人監工
生活習慣調查
分階段付款
完整圖面繪製
完工保固
整屋費用:接案100萬起
設計費用:面議
新成屋:6萬/坪起
接案區域:台北市、新北市、桃園市、新竹市
請設計師聯絡我
線上諮詢
空間效果
測一測我適合哪種風格?
loading
loading
loading
loading
相關作品推薦
同公司
同風格·日式風
同預算 · 201-300萬