薄霧色的侘寂美學,放鬆享受生活的朦朧美
北歐風
風格
新成屋
屋況
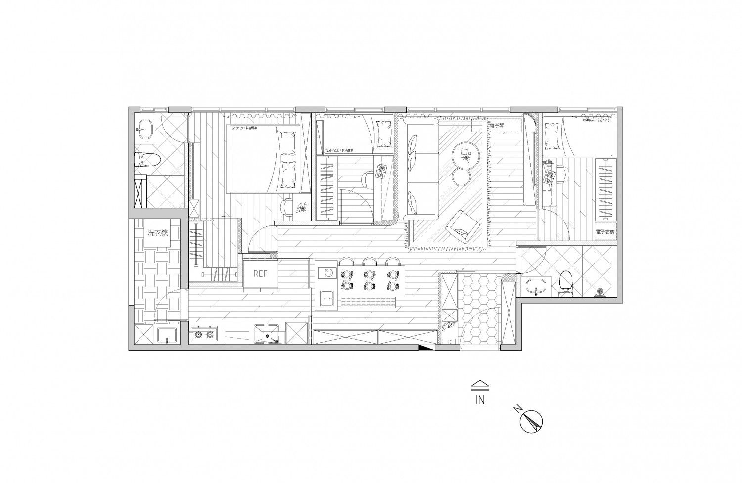
23坪
坪數
3房2廳2衛
格局
費用分佈
| 明細 | 費用金額 |
|---|---|
| 設計費 | 10萬 |
| 施工費 | 240萬 |
設計方案


屋主訴求
設計思路


服務範圍
| 服務 | 說明 |
|---|---|
| 丈量服務 | 3000元(簽約抵設計費) |
| 基礎工程 | 拆除工程: 部分牆面及玄關地坪拆除 泥作工程: 玄關六角磚鋪設 水電工程: 廚房中島及燈光弱電線路、燈具安裝 木作工程: 隔間、曲面造型、木作天花、超耐磨地板 油漆工程: 天花壁面乳膠漆、Spiver義大利藝術塗料、班傑明摩爾 超耐磨漆 系統櫃工程: 全屋櫃體、鐵件玻璃 清潔工程: 全屋細清、垃圾清運 |
| 監工服務 | 工程費8%收取 項目設計師專人監工、定期在line群組匯報工程進展 |
| 裝修保固 | 保固1年 |
*服務範圍屬定製化服務,以設計師和業主洽談方案為準
