一鍵同款一鍵同款一鍵同款設計
分享
下載
輕奢X新古典
台中市
新古典
輕奢的調性
簡約與複雜
大理石
木作線板
一鍵同款一鍵同款一鍵同款設計

線板造型及燈光點綴,白色調耐看時尚現代風

現代奢華

風格

新成屋

屋況

30坪

坪數

4房2廳2衛2陽台

格局

成員2大人1兒童

費用分佈

總費用 200萬單坪6.7萬
我家裝修報價我家裝修報價
明細費用金額
設計費暫未披露,詳情可洽詢公司
施工費暫未披露,詳情可洽詢公司

設計方案

設計方案
loading
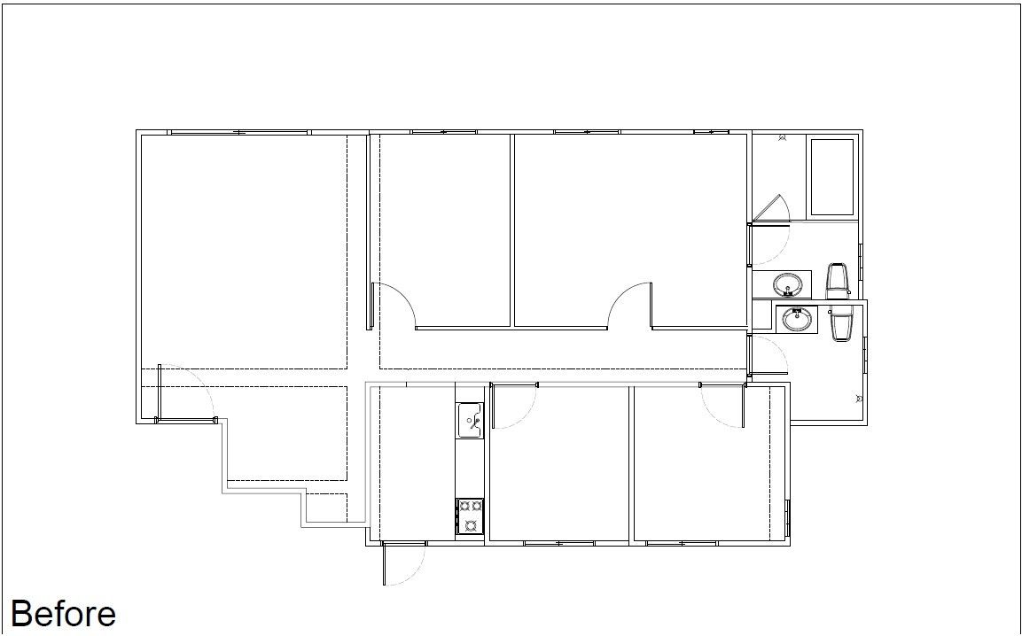
Before
loading
After

屋主訴求屋主訴求

●喜愛簡約現代感、空間大、舒適及整體協調感 ●有喜愛的現代風家具 ●想要放大客廳及主臥空間

設計思路設計思路

●更改牆體位置放大客廳及增加更衣室空間 ●電視牆為大理石+打燈 ●天花牆面線板造型點綴整體空間 ●全室塗裝油漆讓整體白色調性為相當耐看且時尚之現代風格 ●利用系統造型門板搭配業主購置之喜愛的家具風格
空間效果
測一測我適合哪種風格?
loading
loading
1.天花線板及層板燈點綴空間 2.大理石電視牆營造大器感 3.牆面木作線板及踢腳板造型 #天花線板 #間接層板燈

服務範圍

服務說明
丈量服務免費
提案服務免費
基礎工程部分拆除工程 保護工程 水電工程 木作工程 系統工程 泥作工程 油漆工程
監工服務免費監工
裝修保固保固1年(裝修範圍內保固)

*服務範圍屬定製化服務,以設計師和業主洽談方案為準

相關作品推薦
同公司
同風格·現代風
同預算 · 200萬