設計師樊啟勇從業11年國立交通大學
灰、白主色調,木地板和局部暖色點綴溫馨感
混搭風
風格
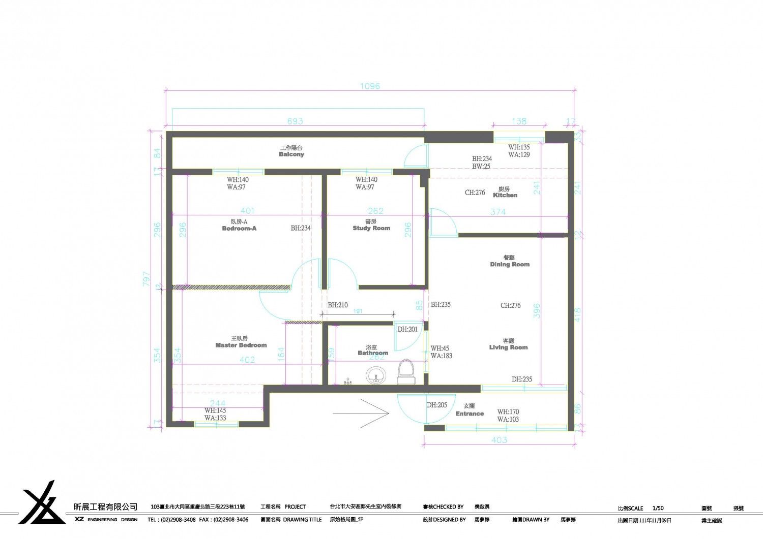
老屋翻新
屋況
30坪
坪數
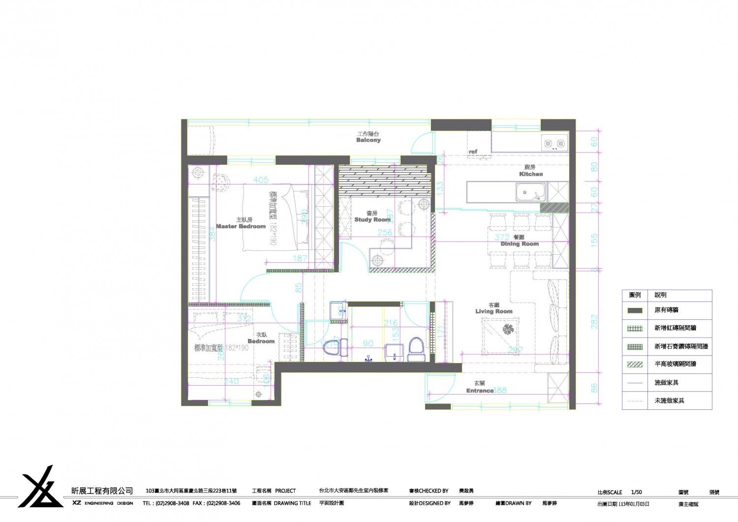
3房2廳2衛1陽台
格局
費用分佈
| 明細 | 費用金額 |
|---|---|
| 施工費 | 120萬 |
| 材料費 | 130萬 |
| 其他 | 50萬(設備) |
設計方案


屋主訴求
設計思路


服務範圍
| 服務 | 說明 |
|---|---|
| 丈量服務 | 免費 |
| 提案服務 | 免費 一套設計方案 |
| 基礎工程 | 部分拆除:雙玄關門.玄關地板磁磚.客廳牆.全室門窗.客廳木作牆.衛浴設備含門及天花地壁磚.衛浴內牆.廚房地壁磚.廚房地板空鼓處.書房牆面打半牆。 隔間工程:新增石膏磚隔間牆 鋁窗工程:全室鋁門窗更新 水電工程:配電箱及全室水電管線更新 空調工程:大金吊隱式空調、日立吊隱式除濕機 木作工程:矽酸鈣板天花、房間門2樘、系統櫃6組 泥作工程:廚房牆壁、浴室地壁、水電開槽修補、門窗崁縫 油漆工程:全室 |
| 裝修保固 | 保固1年 保固所有施工項目 |
*服務範圍屬定製化服務,以設計師和業主洽談方案為準
施工過程
建材配備
| 品類 | 品牌 | 空間 |
|---|---|---|
| 藝術塗料 | 司曼特 | 客廳 |
| 油漆 | 虹牌 | 客廳、廚房、餐廳、臥室 |
| 馬桶 | 凱撒 | 衛浴 |
| 面盆浴櫃 | 凱撒 | 衛浴 |
| 暖風機 | 凱撒 | 衛浴 |
