· 溫柔留白,演繹日常的靜謐時光
新成屋
屋況
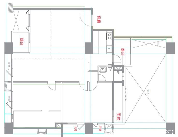
35坪
坪數
3房2廳2衛
格局

云府室內設計
費用分佈
| 明細 | 費用金額 |
|---|---|
| 設計費 | 10萬 |
| 施工費 | 266萬 |
| 其他 | 24萬(監工管理費用) |
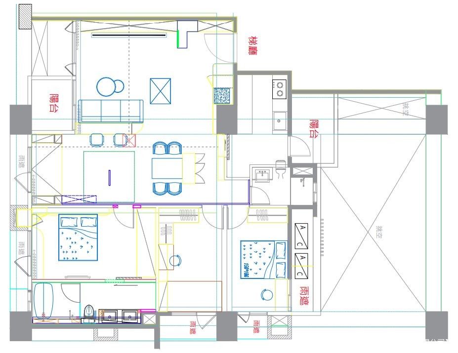
設計方案


屋主訴求
設計思路

服務範圍
| 服務 | 說明 |
|---|---|
| 提案服務 | 10萬(可併入工程款) |
| 基礎工程 | 拆除工程:牆面/地坪/天花局部拆除、管線檢查修繕 保護工程:公共走道/電梯間保護/現有保留項目防碰撞保護 水電工程:冷氣預留管線與排水設置 泥作工程:防水/磁磚鋪貼 木作工程:包含系統櫃工程 材質工程:玻璃工程/鋼鋁工程/油漆工程 軟裝工程:傢飾工程/燈具工程 清潔工程:粗清/細清 |
| 監工服務 | 24萬(包含在預算分布中) 按總工程費8% |
| 裝修保固 | 保固1年 |
*服務範圍屬定製化服務,以設計師和業主洽談方案為準
施工過程
建材配備
| 品類 | 品牌 | 空間 |
|---|---|---|
| 乳膠漆 | 得利 | 客/餐/陽台/臥室/書房 |
| 地板 | FAUS木地板 | 客/餐/陽台/臥室/書房 |
| 沙發 | Gamamobel | 客廳 |
| 茶几 | WHITE LABEL LIVING | 客廳 |
| 電視櫃/展示櫃 | EGGER E1V313 | 客廳 |
| 餐桌 | Naos Naos | 餐廳 |
| 餐椅 | Tonin CASA | 餐廳 |
| 吊燈(燈具) | Nemo | 餐廳 |
| 餐邊櫃 | 義大利薄板大理石 | 餐廳 |
| 地板&牆面 | 義大利進口瓷磚 | 浴室 |
| 馬桶&洗手檯 | TOTO | 浴室 |
| 櫃體 | EGGER E1V313 | 浴室 |
| 暖風機 | KOHLER | 浴室 |
| 淋浴配件 | DAY&DAY | 浴室 |
| 插座 | Panasonic Glatima | 全室 |
