算同款報價算同款報價
分享
下載
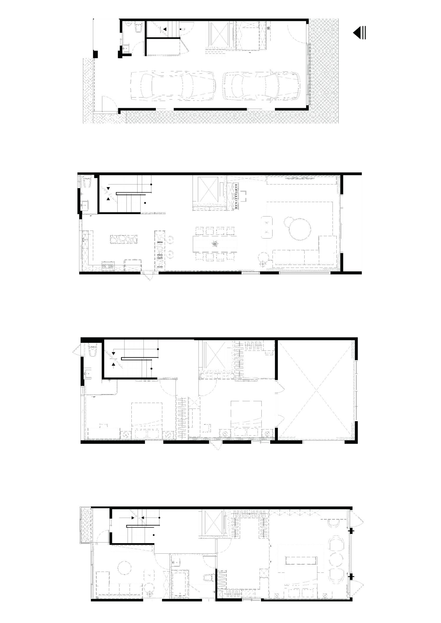
大溪張公館 | 韻‧延續

501萬以上

預算

混搭風

風格

老屋翻新

屋況

105坪

坪數

4房

格局

晨陽共好機構(晨陽設計) 已做裝修登記排名

27項設計大獎
336套作品
55篇開箱
穩定合作工班
承接局部預算
一年內保固
專人監工
驗收交屋
簽訂合約保障
到府丈量
3D透視圖
整屋費用:接案50萬起
設計費用:面議
新成屋:4萬/坪起
中古屋:10萬/坪起
毛胚屋:12萬/坪起
接案區域:六都可接案
請設計師聯絡我
線上諮詢
空間效果
測一測我適合哪種風格?
loading
相關作品推薦
同公司
同風格·混搭風
同預算 · 501萬以上