· 隔間打通‧採光提升‧翻倍寬敞的奶茶親子宅
現代簡約
風格
老屋翻新
屋況
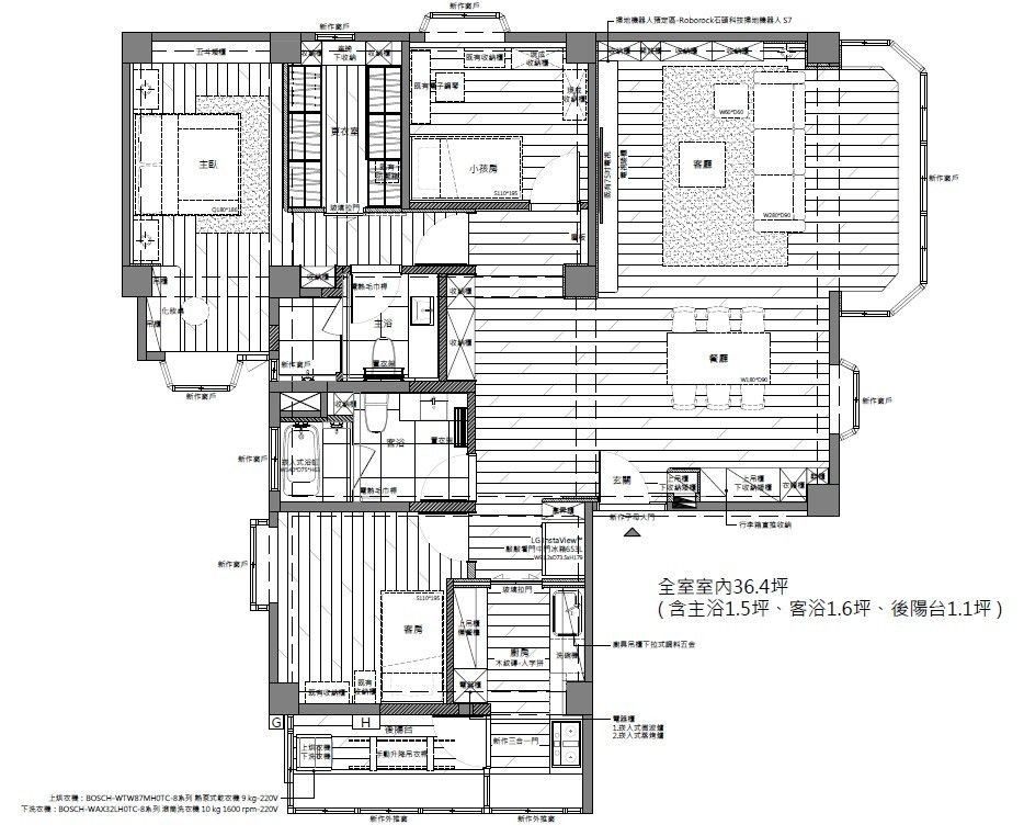
40坪
坪數
3房2廳2衛
格局

築一設計
費用分佈
| 明細 | 費用金額 | 
|---|---|
| 設計費 | 15萬 | 
| 施工費 | 520萬 | 
設計方案


屋主訴求 
設計思路 




服務範圍
| 服務 | 說明 | 
|---|---|
| 提案服務 | 0.4萬(3-5套平面配置規劃) 3-5套平面配置規劃 | 
| 基礎工程 | 拆除工程: 局部隔間 全屋地坪 全屋門窗 浴室 廚房 陽台拆除 泥作工程: 廚房地磚 浴室重作 大板磁磚 水電工程: 全屋管線更新廚房 浴室重作及燈光弱電線路、燈具安裝 木作工程: 隔間、曲面造型、木作天花、超耐磨地板 油漆工程: 天花壁面乳膠漆 系統櫃工程: 全屋櫃體、鐵件玻璃 清潔工程: 全屋細清、垃圾清運 | 
| 監工服務 | 總工程款6% 項目設計師專人監工、定期在line群組匯報工程進展 | 
| 裝修保固 | 保固1年 | 
*服務範圍屬定製化服務,以設計師和業主洽談方案為準

作品開箱

【開箱奶茶圓弧宅】格局大改造!公領域隔間打通,採光提升翻倍寬敞
2025-10-20