· 簡約、純淨的奶油色調氛圍,溫暖又舒適
現代簡約
風格
新成屋
屋況
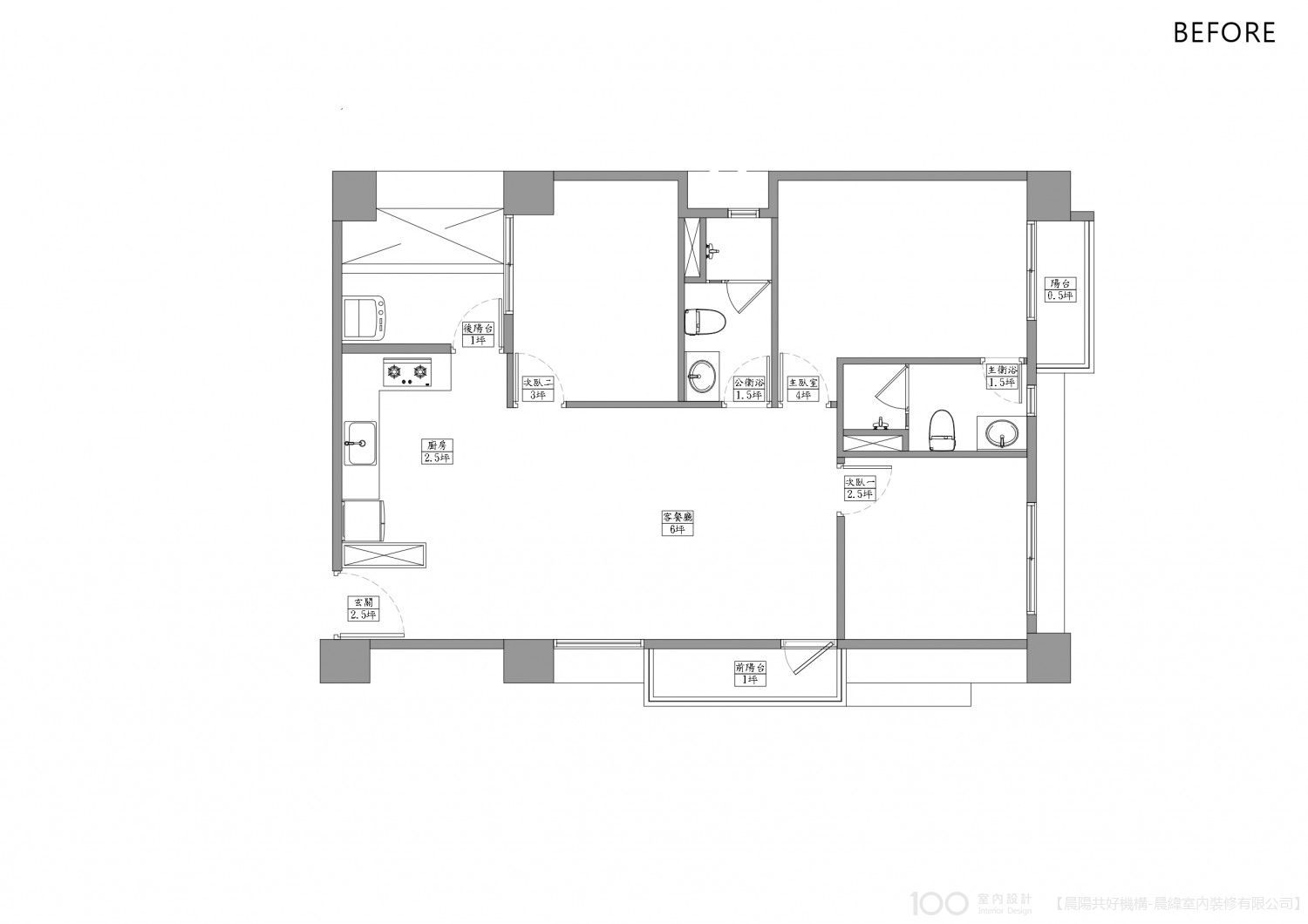
30坪
坪數
3房2廳2衛2陽台
格局

晨陽共好機構(晨陽設計)
費用分佈
| 明細 | 費用金額 |
|---|---|
| 設計費 | 暫未披露,詳情可洽詢公司 |
| 施工費 | 暫未披露,詳情可洽詢公司 |
設計方案


屋主訴求
設計思路




服務範圍
| 服務 | 說明 |
|---|---|
| 丈量服務 | 免費 |
| 提案服務 | 免費 |
| 基礎工程 | 木作工程:天花板、電視造型牆、格柵 油漆工程: 批土、打磨、漆刷 水電工程 : 各空間牽線 系統櫃工程 : 收納櫃體組裝 玻璃工程 : 屏風安裝 |
| 監工服務 | 項目主管專人監工、每天在line群組匯報工程進展 |
| 裝修保固 | 保固1年 |
*服務範圍屬定製化服務,以設計師和業主洽談方案為準
施工過程

作品開箱

30坪暖白系簡約新居開箱,為南漂工程師打造從機能x設計都到位的安心宅
2025-10-08