· 木與白搭配,溫潤且放鬆的生活空間
老屋翻新
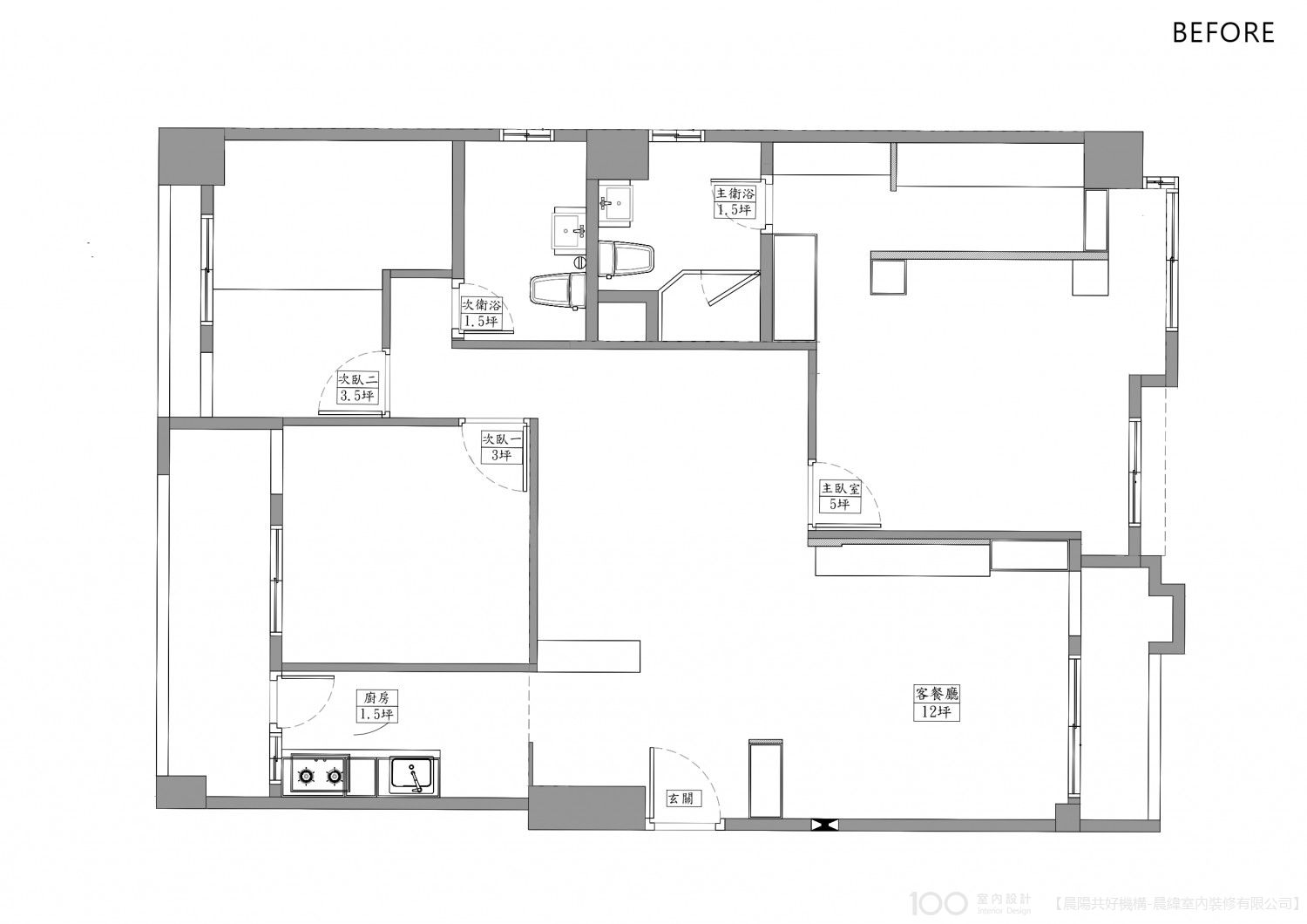
屋況
35坪
坪數
3房2廳2衛2陽台
格局

晨陽共好機構(晨陽設計)
費用分佈
| 明細 | 費用金額 |
|---|---|
| 設計費 | 暫未披露,詳情可洽詢公司 |
| 施工費 | 暫未披露,詳情可洽詢公司 |
設計方案


屋主訴求
設計思路

服務範圍
| 服務 | 說明 |
|---|---|
| 丈量服務 | 免費 |
| 提案服務 | 免費 |
| 基礎工程 | 拆除工程 : 壁、地磚、木作、衛浴拆除 泥作工程 : 防水、砌磚、打底整平 木作工程 :隔間牆、層板、冷氣包管、封板 油漆工程 : 主臥、次臥、客廳、批土刷漆 系統櫃工程 :玄關收納、TV櫃、餐廳電器櫃、衣櫃等收納櫃體安裝 木地板工程 :石塑地板安裝 |
| 監工服務 | 項目主管專人監工、每天在line群組匯報工程進展 |
| 裝修保固 | 保固1年 |
*服務範圍屬定製化服務,以設計師和業主洽談方案為準
施工過程
建材配備
| 品類 | 品牌 | 空間 |
|---|---|---|
| 馬桶 | TOTO | 衛浴 |
