算同款報價
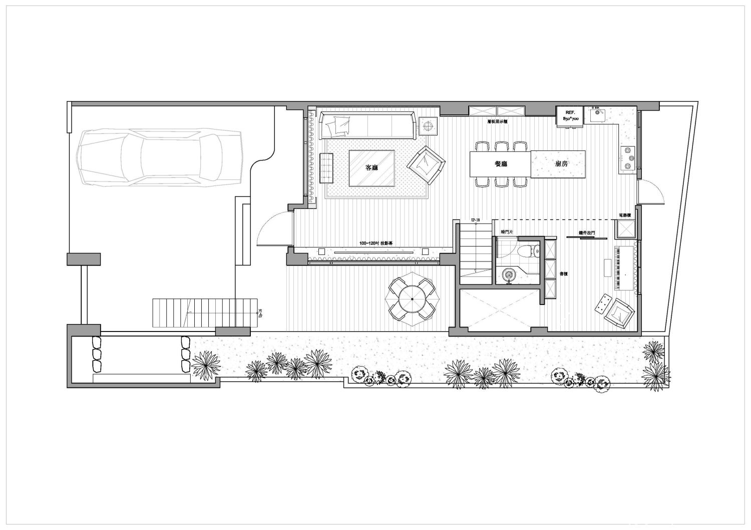
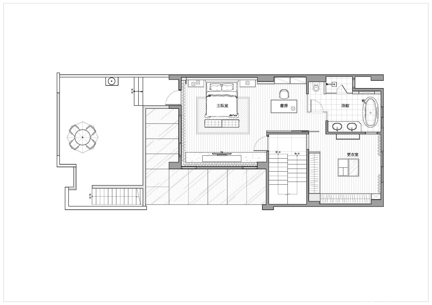
格局實景圖
客廳(3)
餐廳(3)
衛浴(5)
廚房(2)
臥室(4)
衣帽間(2)
其他(2)
(6)
21坪日式人文的新婚浪漫宅
未披露
預算
現代風
風格
新成屋
屋況
21坪
坪數
3房
格局
湘頡設計
9套作品
整屋費用:
接案100萬起
設計費用:
4500 元/坪起
新成屋:
5萬/坪起
接案區域:
高雄市
請設計師聯絡我
線上諮詢
空間效果
測一測我適合哪種風格?
相關作品推薦
同公司
同風格·現代風