設計師劉凡瑋國立屏東科技大學
溫潤木質與柔光氛圍,勾勒靜謐舒心生活日常
日式風
風格
預售屋
屋況
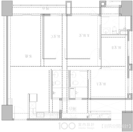
30坪
坪數
4房2廳3衛
格局
費用分佈
| 明細 | 費用金額 |
|---|---|
| 設計費 | 8萬 |
| 施工費 | 81萬 |
| 其他 | 55萬(系統櫃、基礎燈具、工程管理) |
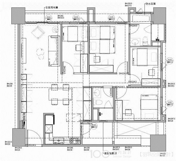
設計方案


屋主訴求
設計思路

服務範圍
| 服務 | 說明 |
|---|---|
| 基礎工程 | 基礎工程:泥做灌漿、牆面粉光貼磚、輕隔間 水電工程:全室給排水、強弱電配管拉線 木作工程:全屋保護、門片、天花板、壁面造型、櫃體 油漆工程:全室牆面、門片油漆 系統櫃:全室收納櫃體 基礎燈具:LED嵌燈、線型燈、LED盒燈 金屬、玻璃工程:金屬層板、金屬造型收邊、金屬結構件、穿衣鏡 其他工程:全室清潔 |
| 監工服務 | 按總工程費5%收取 每天在line群組上傳工程進度照片、專人統整安排工期 |
| 裝修保固 | 保固1年 木工、系統櫃、五金配件、水電、燈具、基礎工程 |
*服務範圍屬定製化服務,以設計師和業主洽談方案為準
施工過程
建材配備
| 品類 | 品牌 | 空間 |
|---|---|---|
| 乳膠漆 | 得利DULUX | 客廳 |
| 超耐磨木地板 | PERGO | 地板 |
| 系統板 | EGGER | 櫃子 |
