· 侘寂灰與輕奢米交織的精緻藝術之宅
老屋翻新
屋況
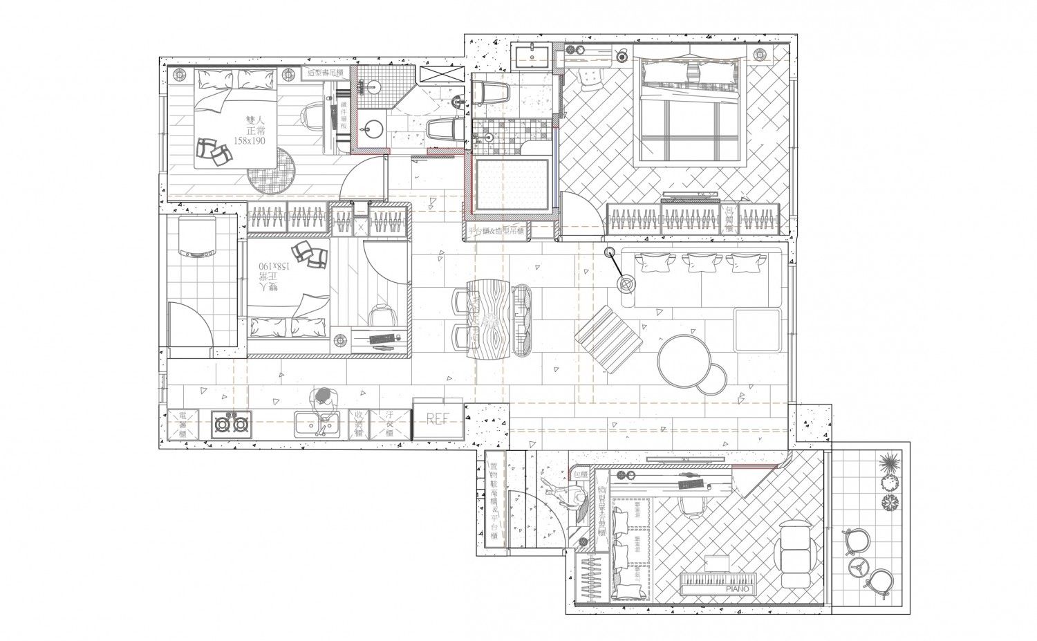
35坪
坪數
3房2廳2衛2陽台
格局

沅森室內設計YS_design
設計師賴威宇先生 真理大學 從業10年
費用分佈
| 明細 | 費用金額 |
|---|---|
| 設計費 | 暫未披露,詳情可洽詢公司 |
| 施工費 | 477萬(工程費) |
| 其他 | 103萬(系統費) |
設計方案


屋主訴求
設計思路


服務範圍
| 服務 | 說明 |
|---|---|
| 丈量服務 | 2500元 |
| 基礎工程 | 全室拆除:全室分間牆、地坪見底、廚房、浴室 全屋保護:全屋防潮佈、塑膠瓦楞板、不足一分板 水電工程:全室水電更新、單層排氣、全熱交換管線 木作工程:隔音隔間牆、造型天花板/壁面、造型櫃、全室造型房門/隱藏門、造型推拉門 泥作工程:浴室紅磚牆/防水、全室地坪整理、玄關/客餐廳面貼60*120進口磚 |
| 監工服務 | 按總工程費8%收取 (不含代購項目) 主要設計師/line群組匯報工程進展 |
| 裝修保固 | (工程保固1年、系統櫃保固10年) 裝修區域保固 |
*服務範圍屬定製化服務,以設計師和業主洽談方案為準
施工過程
建材配備
| 品類 | 品牌 | 空間 |
|---|---|---|
| 油漆 | 義大利特殊漆 | 客餐廳 |
| 油漆 | 礦物塗料 | 客餐廳 |
| 地板 | 600*1200義大利地磚 | 客餐廳 |
| 局部壁面/電視牆 | 1200*2700西班牙進口磚 | 客餐廳 |
| 系統櫃 | 德國進口板材 | 臥室 |
| 地板 | QUICK-STEP/進口方塊地毯 | 臥室 |
| 油漆 | 義大利特殊漆 | 臥室 |
| 系統櫃 | 德國進口板材 | 餐廳 |
| 檯面 | 凱薩金石 | 餐廳 |
| 馬桶 | TOTO | 衛浴 |
| 暖風機 | KOHLER | 衛浴 |
