設計師陳皓澤從業26年
木質、藤編、灰色塗料結合的開放式舒心宅
日式無印
風格
老屋翻新
屋況
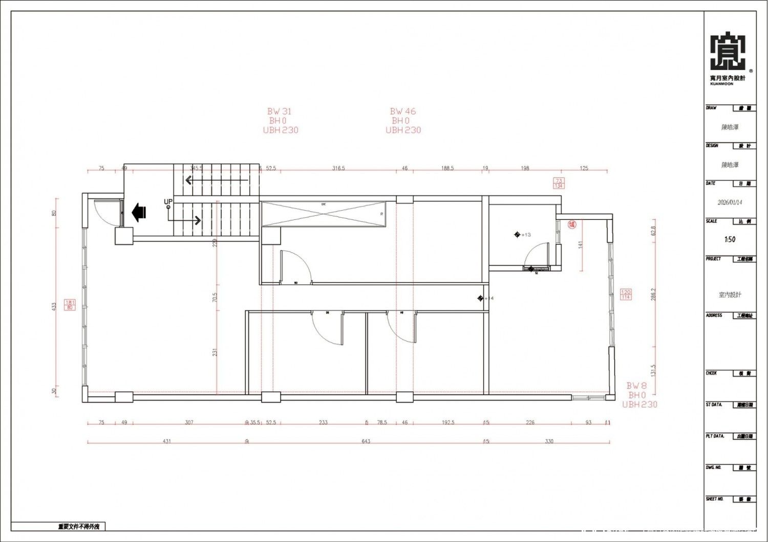
21坪
坪數
3房2廳1衛
格局
費用分佈
| 明細 | 費用金額 |
|---|---|
| 設計費 | 10.5萬(5000/坪) |
| 施工費 | 369.5萬(詳洽設計公司) |
設計方案


屋主訴求
設計思路


服務範圍
| 服務 | 說明 |
|---|---|
| 丈量服務 | 免費 |
| 提案服務 | 免費 二套設計方案、3D效果圖 |
| 基礎工程 | 全室拆除:全室木作拆除/地磚打除/磚牆切割/加高廁所打除見底/窗戶拆除/ 水電工程:電力申請(容量增設)正規申請100A繪圖報俊工/台電規範表前附表後單表箱體120*40/接地工程(實接地)打銅棒配置/主幹線22mm-xlpe耐熱電纜3c/全室水電更新/電箱更新 木作工程:天花板/隔音棉隔間/造型圓弧/地板/科技木皮 泥作工程:砌磚+粉光/大.小浴室舊牆面打粗底(加厚)、A5級防水至頂/管溝修補、 |
| 監工服務 | 按總工程費8%收取 專人監工、每天在line群組匯報工程進展 |
| 裝修保固 | 保固1年 |
*服務範圍屬定製化服務,以設計師和業主洽談方案為準
建材配備
| 品類 | 品牌 | 空間 |
|---|---|---|
| 油漆 | 得利DULUX | 客廳 |
| 馬桶 | TOTO | 衛浴 |
