設計師鄧宗漢淡江大學
層層展開家的日常,六層樓串起幸福篇章
現代風
風格
新成屋
屋況
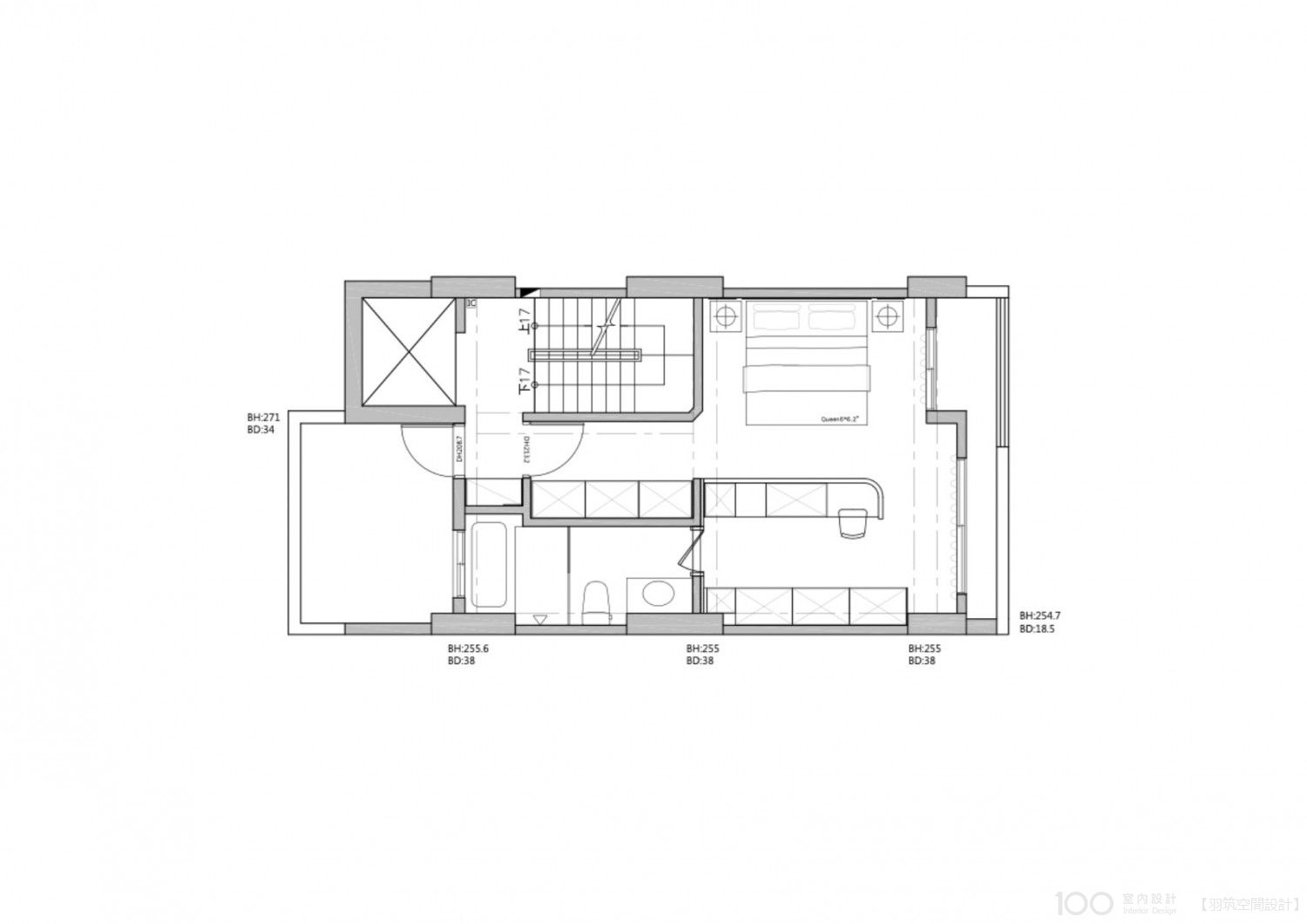
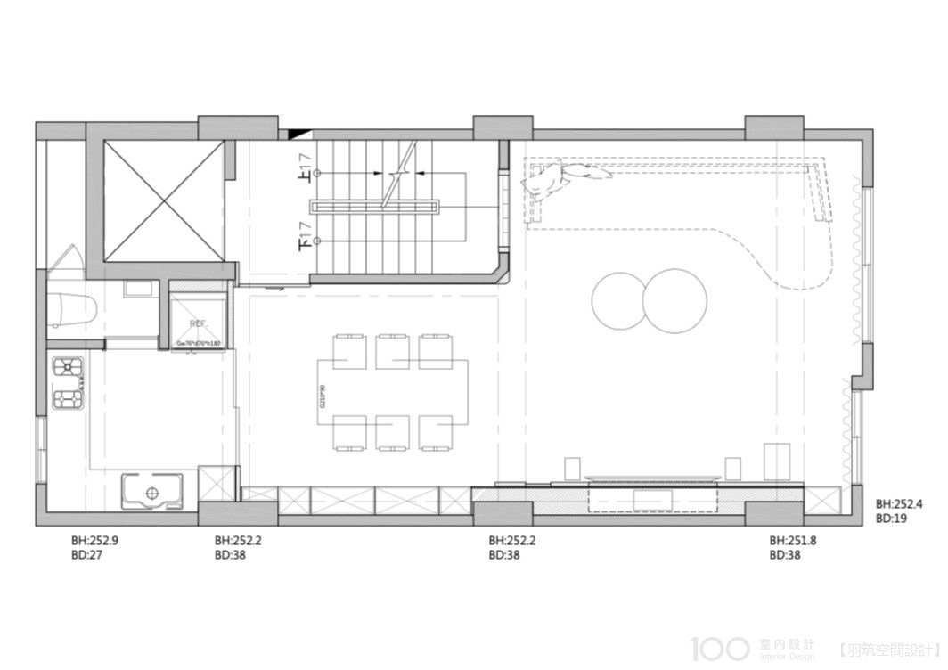
60坪
坪數
5房2廳6衛
格局
費用分佈
| 明細 | 費用金額 |
|---|---|
| 設計費 | 15萬 |
| 施工費 | 373萬 |
| 其他 | 12萬 |
設計方案












屋主訴求
設計思路

服務範圍
| 服務 | 說明 |
|---|---|
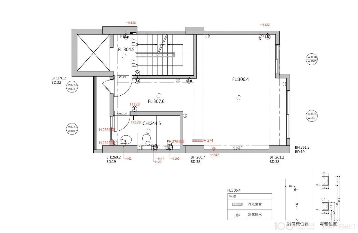
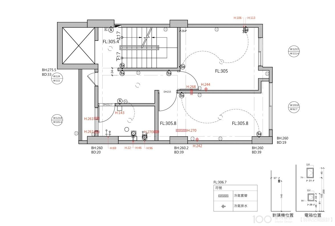
| 基礎工程 | 水電工程:全室給排水、強弱電配管拉線 木作工程:全屋保護、天花板、壁面造型、櫃體 油漆工程:全室牆面、2F電視牆及3F主臥強特殊塗料 系統櫃:全室收納櫃體 基礎燈具:LED嵌燈、線型燈、T5 LED 金屬、玻璃工程:鏽蝕鐵板 其他工程:全室清潔 |
| 監工服務 | 按總工程費5%收取 每天在line群組上傳工程進度照片、專人統整安排工期 |
| 裝修保固 | 保固1年 木工、系統櫃、五金配件、水電、燈具、基礎工程 |
*服務範圍屬定製化服務,以設計師和業主洽談方案為準
施工過程
建材配備
| 品類 | 品牌 | 空間 |
|---|---|---|
| 特殊塗料 | LUXUS PAINT | 電視牆 |
