一鍵同款一鍵同款套用這個風格
分享
下載
白日靜好
新北市
鄉村風
法式
鄉村風格
收納
白色
系統傢俱
系統櫃
智能
耐磨地板
白色室內設計
白色風格
鄉村法式
一鍵同款一鍵同款套用這個風格

圓弧與鄉村線板,收起生活裡的溫柔

法式鄉村

風格

新成屋

屋況

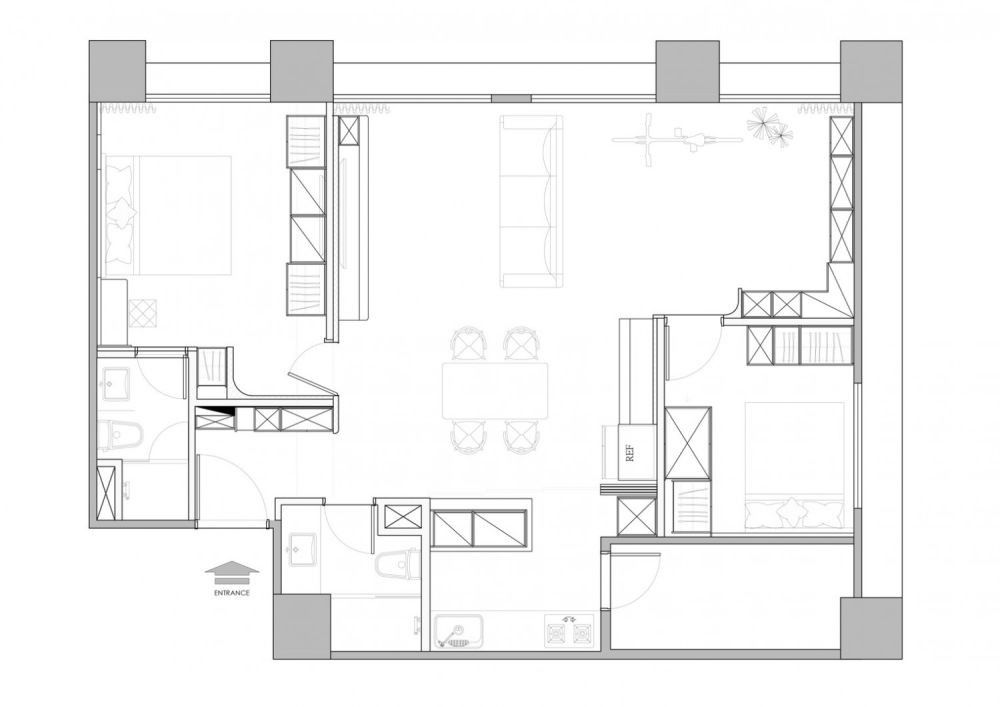
30坪

坪數

2房2廳2衛1陽台

格局

成員1大人

費用分佈

總費用 320萬單坪11.9萬
我家裝修報價我家裝修報價
明細費用金額
施工費150萬
材料費170萬(系統傢俱)

設計方案

設計方案
loading
Before
loading
After

屋主訴求屋主訴求

●偏好白色與素雅氛圍,希望是法式鄉村風。 ●重視每個空間的收納機能,特別是四季衣物的收納。 ●喜歡細節與觸感的設計,簡單中也要有細膩層次。

設計思路設計思路

●以法式鄉村風為主軸,選用白色陶烤鄉村門片搭配曙橡系統板材,柔和的色調與材質堆疊,營造細膩、溫馨氛圍。 ●加入智能照明系統,可依情境調整冷暖光色,打造舒適生活場域。 ●選用淨味抗污、防霉抗菌的乳膠漆,居家環境更安心健康。
空間效果
測一測我適合哪種風格?
loading
loading
loading
1.玄關櫃以白色陶烤鄉村門片搭配古典框線打造,並選用仿古金屬把手,展現精緻細節。 2.鞋櫃採懸浮設計,搭配間接燈光,減輕視覺重量。

服務範圍

服務說明
丈量服務免費
提案服務免費
基礎工程全屋保護:全屋防潮佈、塑膠瓦楞板 部分拆除工程 水電工程:廚房、整室智能燈光、中央冷熱空調、 木作工程:全室系統櫃、天花板工程 油漆工程
裝修保固保固1年(裝潢工程保固一年、系統櫃櫃體結構保固十年)

*服務範圍屬定製化服務,以設計師和業主洽談方案為準

施工過程

施工過程
木作工程
各區域木作
相關作品推薦
同公司
同風格·鄉村風
同預算 · 320萬