設計師洪逸安從業23年中原大學室內設計系學士、碩士
光影詮釋生活之美,凝聚生活的溫暖與故事
混搭風
風格
老屋翻新
屋況
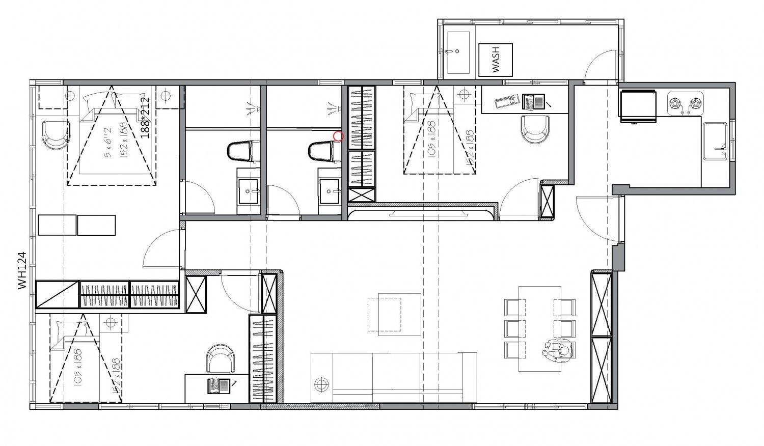
35坪
坪數
3房2廳2衛
格局
費用分佈
| 明細 | 費用金額 |
|---|---|
| 設計費 | 暫未披露,詳情可洽詢公司 |
| 施工費 | 暫未披露,詳情可洽詢公司 |
設計方案


屋主訴求
設計思路

服務範圍
| 服務 | 說明 |
|---|---|
| 丈量服務 | 3000元(簽約抵設計費) |
| 基礎工程 | 拆除工程:全室拆除 泥作工程: 廚房地磚鋪設及浴室兩間 水電工程: 全室水電更新 木作工程: 隔間、曲面造型、木作天花、超耐磨地板、花磚型超耐磨地板 油漆工程: 天花壁面乳膠漆、班傑明摩爾 超耐磨漆 系統櫃工程: 全屋櫃體、鐵件玻璃 清潔工程: 全屋細清、垃圾清運 |
| 監工服務 | 總工程費用7% 項目主管專人監工、每天在line群組匯報工程進展 |
| 裝修保固 | 保固1年 |
*服務範圍屬定製化服務,以設計師和業主洽談方案為準
施工過程
