一鍵同款一鍵同款套用這個風格
分享
下載
謐靜之居 Tranquility
台北市
簡約
台北
室內設計
內湖
簡約
台北
室內設計
內湖
一鍵同款一鍵同款套用這個風格

寂靜的城市小居所,全家的秘密基地

北歐簡約

風格

老屋翻新

屋況

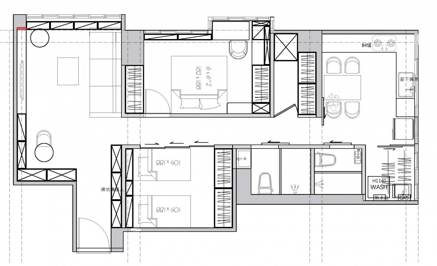
23坪

坪數

3房2廳2衛

格局

成員2大人2兒童

費用分佈

總費用 307萬單坪13.3萬
我家裝修報價我家裝修報價
明細費用金額
設計費7萬
施工費300萬

設計方案

設計方案
loading
Before
loading
After

屋主訴求屋主訴求

1.屋主為一對中年夫妻、有2位成人女兒;喜好陽光北歐簡約風格; 2.保持臥室的私密性:想要在有限的空間裡面增加收納,提高空間的明亮感寬敞的感覺 3.老屋翻新、調整整體的格局讓空間方便使用擴大有限的空間面積 4.格局調整保持空間通透,廚房餐廳空間得以妥善放置,整合衛浴空間,保持臥室的私密性,在視覺上做整體光線的提升,提升空間感整合生活機能

設計思路設計思路

整體空間感提高,空間採光亮度提升、材質運用簡約明快、調整格局後動線明確、廚房空間變大變亮
空間效果
測一測我適合哪種風格?
loading
loading
#白色櫃體 #穿鞋椅設計 #開放展示層 #隱藏式把手 1.白色系櫃體整合鞋櫃與收納機能,入口視覺清爽俐落 2.櫃體下方預留穿鞋椅,進出門更方便 3.中段留白作為展示層,搭配簡約擺飾,增添生活感 4.玄關延續全室白色調性,全室明亮且更顯寬敞

服務範圍

服務說明
基礎工程拆除工程:全室拆除 泥作工程: 廚房地磚鋪設及浴室兩間 水電工程: 全室水電更新 木作工程: 隔間、曲面造型、木作天花、超耐磨地板 油漆工程: 天花壁面乳膠漆、班傑明摩爾 超耐磨漆 系統櫃工程: 全屋櫃體、鐵件玻璃 清潔工程: 全屋細清、垃圾清運
監工服務總工程費用7% 項目主管專人監工、每天在line群組匯報工程進展
裝修保固保固1年

*服務範圍屬定製化服務,以設計師和業主洽談方案為準

施工過程

施工過程
基礎拆除
拆除工程、清運營建廢棄物
泥作工程
泥作工程;疊磚放樣;疊磚工程浴室 泥作工程;浴室壁磚;浴室地磚施作;廚房打底施作
木作工程
木作工程;隔間;天花板施作工程_
水電工程
消防管改管
系統工程
系統櫃組裝
清潔工程
粗細清等工程
相關作品推薦
同公司
同風格·北歐風
同預算 · 307萬