設計師黃毓惠設計師從業16年中華大學
純白石紋伴隨開闊視野,簡約明亮的現代宅
現代風
風格
新成屋
屋況
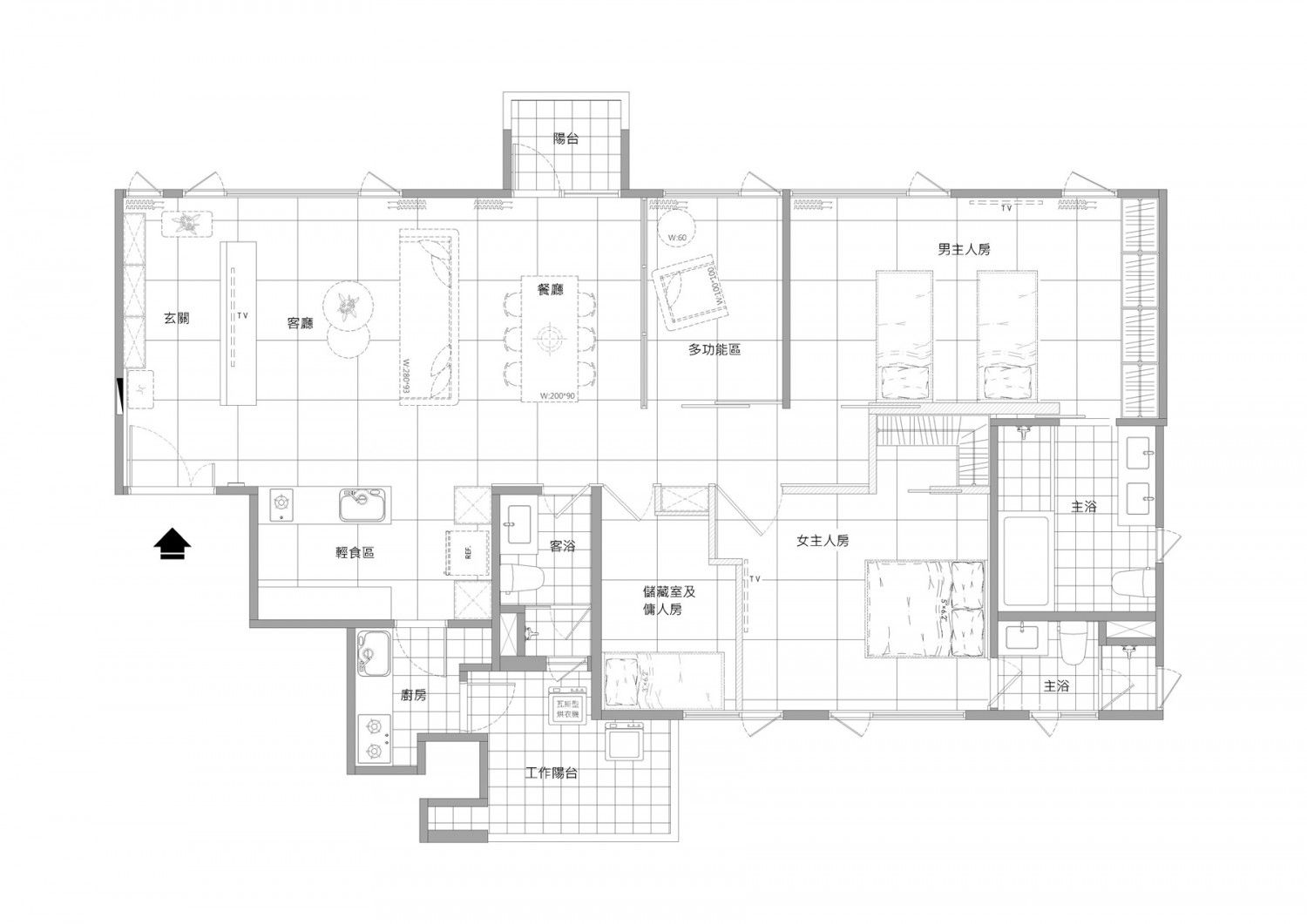
55坪
坪數
3房2廳2衛2陽台
格局
費用分佈
| 明細 | 費用金額 |
|---|---|
| 設計費 | 9萬 |
| 施工費 | 350萬(連工帶料) |
設計方案


屋主訴求
設計思路



服務範圍
| 服務 | 說明 |
|---|---|
| 丈量服務 | 免費 |
| 提案服務 | 免費 設計方案、3D效果圖 |
| 基礎工程 | 拆除:部分拆除 全屋保護:全屋防潮布、塑膠瓦楞板.夾板 水電工程:全室線路 木作工程:木作+系統櫃 泥作工程:部分泥作 油漆工程:全室批土油漆 |
| 監工服務 | 按總工程費8%收取 設計師負責監工、每天在line群組匯報工程進展 |
| 裝修保固 | 保固1年 |
*服務範圍屬定製化服務,以設計師和業主洽談方案為準
施工過程
建材配備
| 品類 | 品牌 | 空間 |
|---|---|---|
| 油漆 | 得利DULUX | 客廳 |
| 床 | 眠豆腐 | 臥室 |
| 廚具 | 林內 | 廚房 |
| 洗碗機 | MIELE洗碗機 | 餐廳 |
| 馬桶 | TOTO | 衛浴 |
