設計師Chi-hsuan南榮科技大學
美式融合現代,線條化繁為簡,散發輕奢質感
美式風
風格
自地自建
屋況
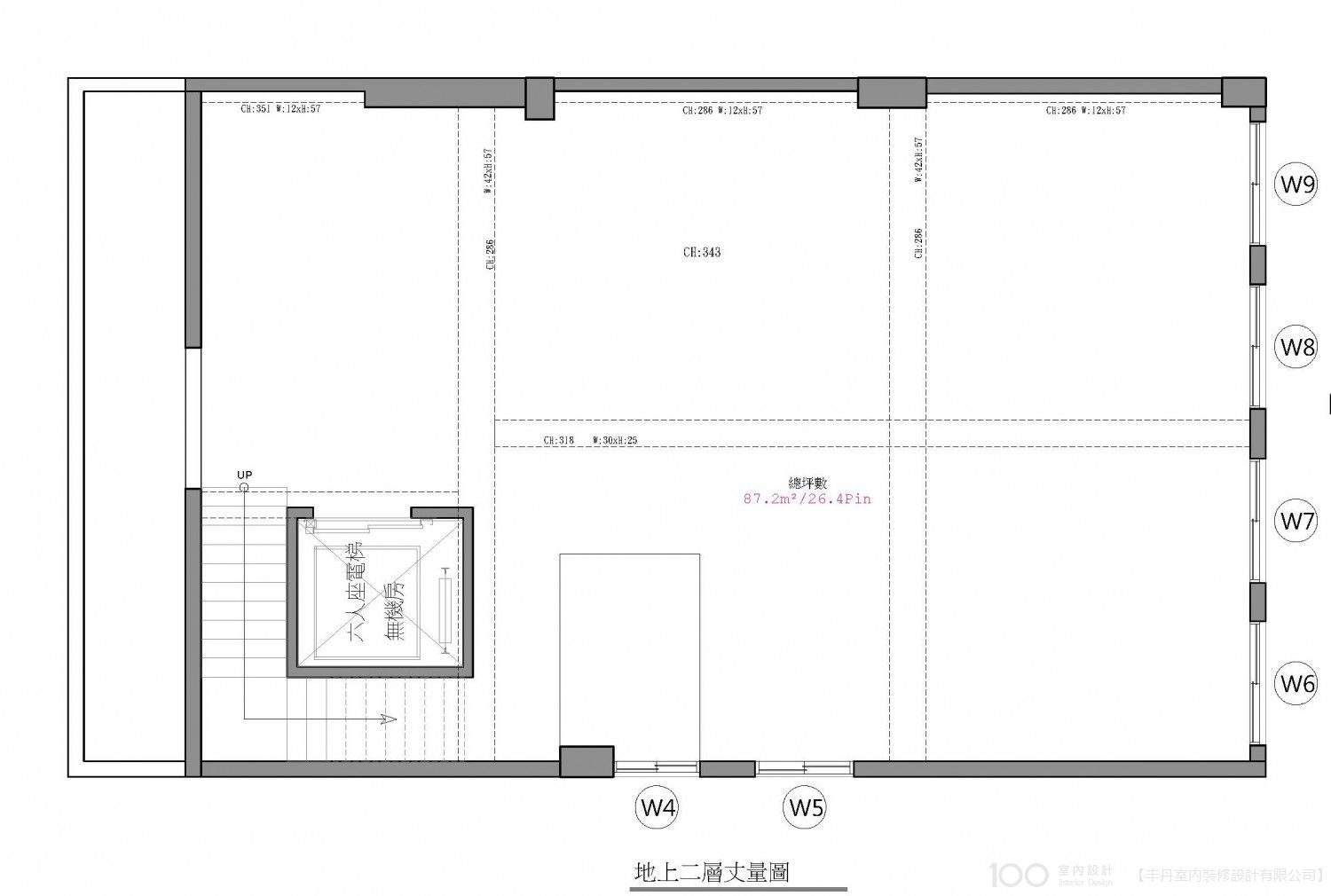
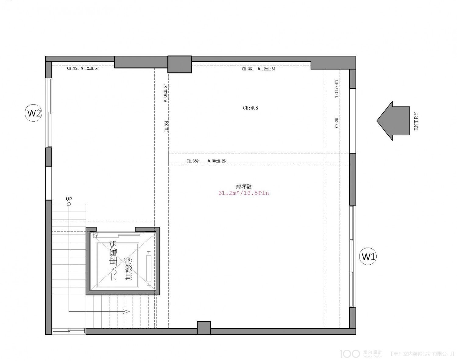
105坪
坪數
4房4廳7衛
格局
費用分佈
| 明細 | 費用金額 |
|---|---|
| 設計費 | 15萬 |
| 施工費 | 210萬 |
設計方案




屋主訴求
設計思路



服務範圍
| 服務 | 說明 |
|---|---|
| 基礎工程 | 全屋保護:全屋PC板、1分夾板 水電配線:裝潢部分新增線路、水槽 木作工程:天花、壁面造型、櫃體收納訂製等 泥作工程:電視牆貼大板磚 油漆工程:天壁塗裝、櫃體門片烤漆 |
| 監工服務 | 工程款10% 項目主管專人監工、每天在line群組匯報工程進展、協調工班配合 |
| 裝修保固 | 保固1年 |
*服務範圍屬定製化服務,以設計師和業主洽談方案為準
施工過程
建材配備
| 品類 | 品牌 | 空間 |
|---|---|---|
| 磁磚 | 瑪摩麗磁 | 壁面/地板 |
| 美耐板 | 富美家 | 櫃體 |
| 美耐板 | 萊適寶 | 櫃體 |
| 批批板 | KD | 櫃體 |
| 人造石 | 三星 | 客廳、餐廳等 |
| 油漆 | 得利 | 壁面、牆面 |
