· 以石材、藝術塗料及深色調打造沈靜舒適宅
新成屋
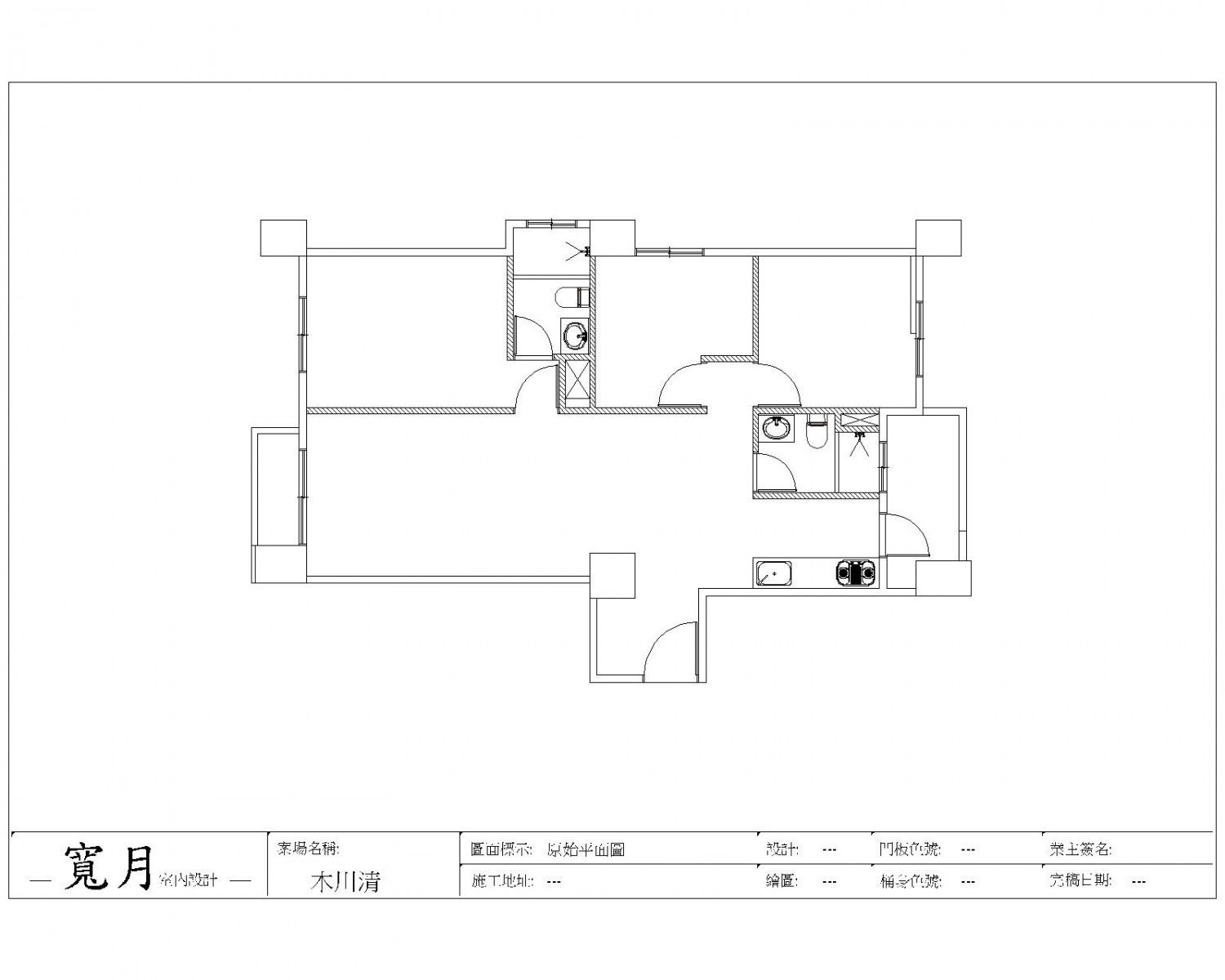
屋況
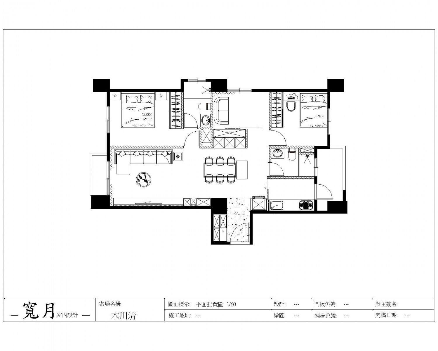
28坪
坪數
3房2廳2衛
格局

寬月室內設計
設計師Adam Chou 從業15年
費用分佈
| 明細 | 費用金額 |
|---|---|
| 設計費 | 9.6萬 |
| 施工費 | 127.4萬 |
設計方案


屋主訴求
設計思路




服務範圍
| 服務 | 說明 |
|---|---|
| 丈量服務 | 免費 |
| 提案服務 | 免費 二套設計方案、3D效果圖 |
| 基礎工程 | 部分拆除:臥室隔間牆 全屋保護:全屋木夾板、塑膠瓦楞板 水電工程:室內配線 木作工程:天花板、造型牆、系統櫃 泥作工程 油漆工程:全室乳膠漆、藝術塗料 |
| 監工服務 | 按總工程費5%收取 專人監工、每天在line群組匯報工程進展 |
| 裝修保固 | 保固1年 |
*服務範圍屬定製化服務,以設計師和業主洽談方案為準
施工過程
