設計師陳一鳳 女士從業11年國立成功大學
灰白基調佐木質元素,沈穩溫潤的現代質感宅
現代風
風格
新成屋
屋況
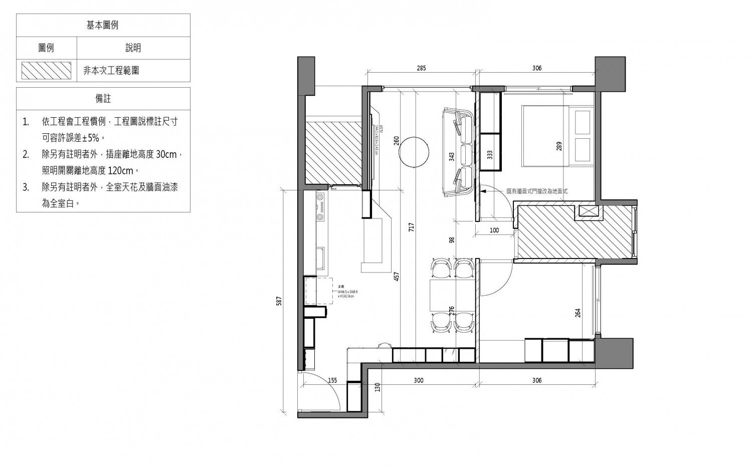
18坪
坪數
2房1廳1衛1陽台
格局
費用分佈
| 明細 | 費用金額 |
|---|---|
| 設計費 | 10萬 |
| 施工費 | 145萬(連工帶料) |
設計方案


屋主訴求
設計思路

服務範圍
| 服務 | 說明 |
|---|---|
| 丈量服務 | 5000元(簽約後可以於設計費折抵) |
| 基礎工程 | 軟件工程:窗簾 全屋保護:全屋2分夾板+防潮布+塑膠瓦愣板 水電工程:中島、開關、弱電、插座、燈具線路 木作工程:中島櫃、衣櫃、電視櫃、電視牆、鞋櫃、收納櫃、餐邊櫃、更衣室、展示櫃、天花板 油漆工程:藝術漆、烤漆、油漆 |
| 監工服務 | 5萬(總工程費4%為監工費) 項目主管專人監工、每周在line群組匯報工程進展 |
| 裝修保固 | 保固1年 本工程施作項目 |
*服務範圍屬定製化服務,以設計師和業主洽談方案為準
施工過程
